Umbria, Orvieto

וילה לה מדונציה (Villa La Madonnuccia)

€ 1.300.000

7חדרי שינה
9חדרי רחצה
1.936 מ"רשטח כולל
0,5 הקטארקרקע

תיאור הנכס

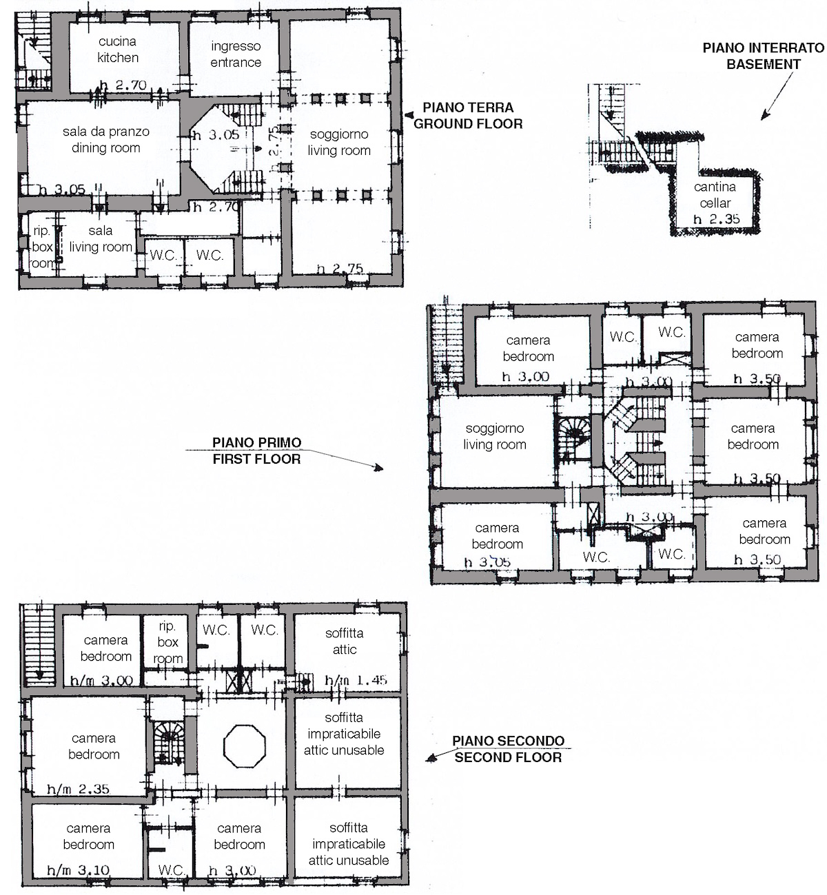
וילה בעלת אווירה עתיקה, שבה הקירות מספרים על מסיבות וסלונים, גברים ונשים אצילות, המקרינה קסם ייחודי ונצחי שעדיין מורגש היום. הוילה ממוקמת במרחק קצר מהעיר אורבייטו, ש"רופה" שלה נראית בין העצים הגבוהים המקיפים את הבניין הראשי. הנכס מורכב מהוילה הראשית, עם פארק בשטח של כ-4,500 מ"ר, בקצהו בית שומר, מוסך ומחסנים הזקוקים לשיפוץ. יש גם מרתף תת קרקעי מסורתי בשטח של כ-200 מ"ר. הוילה משתרעת על שלוש קומות, המחוברות במדרגות מרשימות המסתיימות בקומה העליונה, שם ממוקם המגדל. הכניסה הראשית נפתחת לחדר קבלה, בצדדיו שתי שורות של קשתות, המגדירות מצד אחד חדר עבודה ומצד שני סלון. לאחר מכן יש חדר אוכל גדול, הסמוך למטבח. בקומת הקרקע יש גם חדרים נוספים, חדרי אמבטיה וחדרי אחסון. בקומה הראשונה יש סלון גדול המחבר בין שני חלקי הוילה, הכולל חדרי שינה, חדרי אמבטיה וחדרים נוספים. ניתן להגיע לקומה זו גם באמצעות מדרגות חיצוניות. הגישה לקומה השלישית היא באמצעות מדרגות פנימיות או מעלית משא. בקומה האחרונה יש חדרים נוספים וחדרי אמבטיה.

מאפיינים פנימיים

  • דלת משוריינת
  • כניסות מרובות
  • חדר אמבטיה עם אמבטיה
  • חדר אמבטיה עם מקלחת
  • מערכת אזעקה
  • מעלית
  • ריצוף קרמיקה

מאפיינים חיצוניים

  • נוף לפארק
  • נוף לגן
  • נוף לרחוב

תוכניות קומה

Planimetria 1

מרחקים

  • סופרמרקט 7
  • בנקים 6
  • "יציאת כביש מהיר 8
  • בתי ספר 9
  • ים 80
  • "מתקני סקי 70
  • ערים/עיירות/כפרים 1
  • שדה תעופה 83
  • חנויות 1
  • אגם 25
  • תחנה 7
  • בית חולים 8
  • Theatres/קולנוע 10