Umbria, Magione

וילה דלה רוזה (Villa delle Rose)

Trattativa riservata

4חדרי שינה
3חדרי רחצה
445 מ"רשטח כולל
0,4 הקטארקרקע
כןבריכה

תיאור הנכס

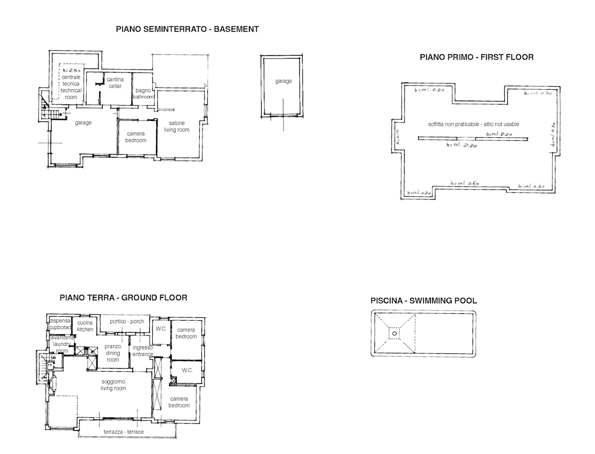
וילה דלה רוזה (Villa delle Rose) בנויה בשתי קומות ומחולקת לשתי יחידות מגורים המחוברות גם במדרגות פנימיות. בקומה העליונה מוגבהת, יש את הכניסה, סלון גדול ומפואר עם פינת אוכל ואח, עם גישה לטרסה מקורה גדולה, חדר שינה ראשי עם חדר רחצה צמוד, חדר שינה זוגי, וחדר רחצה שני, מטבח מרווח עם פינת ארוחת בוקר, חדר כביסה ומחסן.
בקומה התחתונה יש אזור מגורים עם מטבחון, שני חדרי שינה זוגיים, חדר רחצה, מרתף ומוסך.
הגינה, בשטח של 3,625 מ"ר, מגודרת במלואה וכוללת שלושה כניסות לכלי רכב. היא כוללת בריכת שחייה בגודל 10 x 5 מטר ומוסך בשטח של כ-30 מ"ר.

תוכניות קומה

Planimetria 1