Umbria, Corciano

קסם אומבריה (Umbria Charme)

€ 890.000

4חדרי שינה
2חדרי רחצה
525 מ"רשטח כולל
0,5 הקטארקרקע
כןבריכה

תיאור הנכס

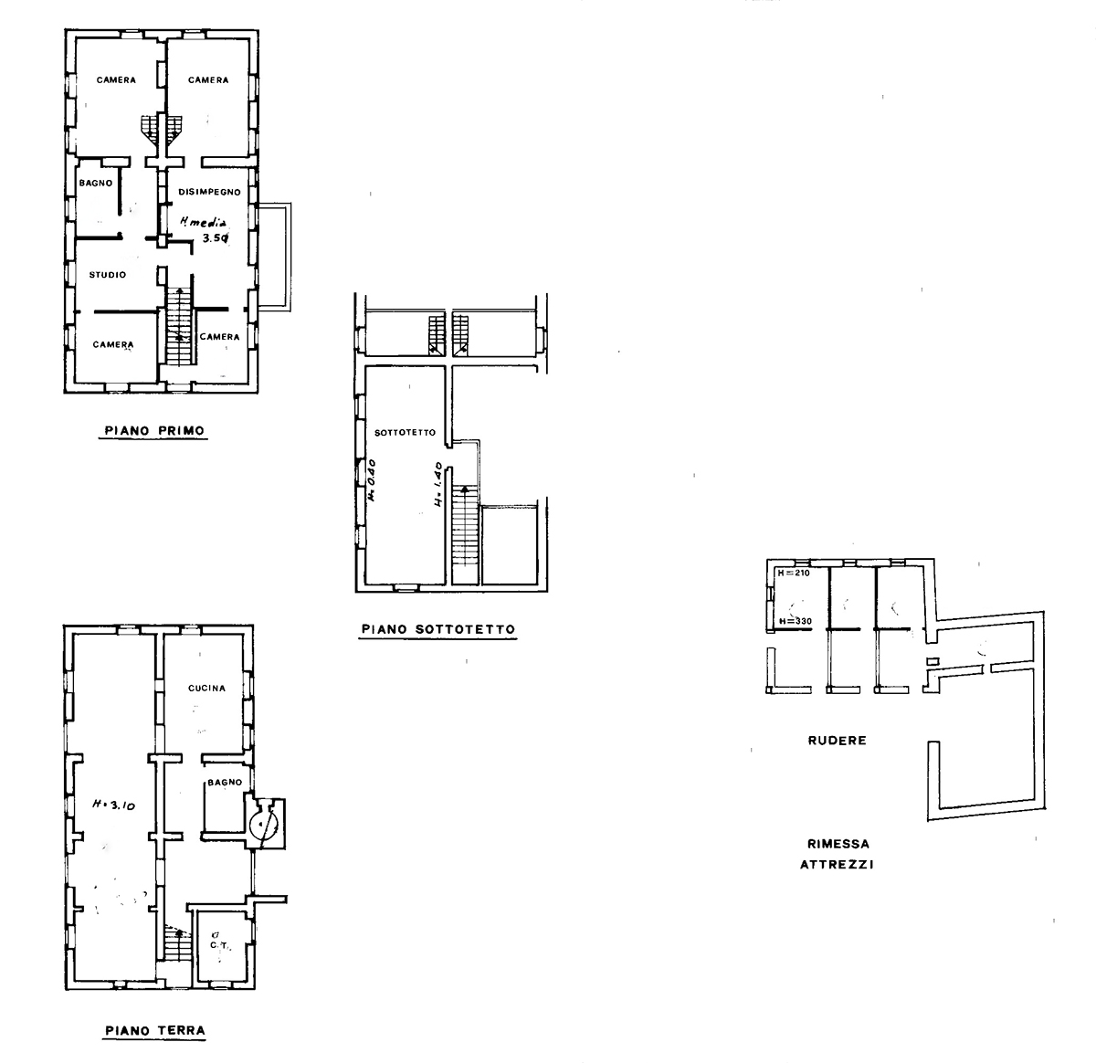
נכס מלכותי זה מתגאה בשטח מגורים ברוטו של כ-380 מ"ר, הפרוס על פני שלוש קומות. הוא כולל מגוון חללים המשלבים נוחות ופונקציונליות, תוך שילוב אלמנטים של סגנונות עתיקים ומודרניים.

הקומה הקרקעית כוללת את אזור המגורים, שירותי אורחים וחדר אחסון. המטבח המרווח עם פינת אוכל מחובר לסלון גדול המאופיין באלמנטים קלאסיים של חווה אומברית-טוסקנית, כולל תקרה עם קורות עץ, רצפות טרקוטה ואח מרכזית גדולה. אזור זה יוצר אווירה חמה וחברתית.

גרם מדרגות פנימי מוביל לקומה הראשונה, הנפתחת לסלון שני ומשלים בארבע חדרי שינה, שניים מהם כוללים עליית גלריה, חדר עבודה וחדר אמבטיה. הקומה הושלמה על ידי עליית גג הנגישה מאחד חדרי השינה, אידיאלית לשימוש כאחסון.

הנכס כולל גם מבנה צדדי שהוסב לטברנה, המשתרעת על כ-42 מ"ר, בנויה כולה מעץ וכוללת חלונות גדולים. בפנים יש מטבח מובנה ופינת אוכל, מושלמים לאירוח אורחים במהלך ארוחות צהריים או ערב.

השטח החיצוני כולל פארק גנים בשטח של כ-4,800 מ"ר עם בריכת אינסוף מחוממת בגודל 14 x 7 מטרים, המאפשרת הנאה גם כאשר מזג האוויר קריר יותר. משלים את המתקנים החיצוניים בית בריכה של כ-15 מ"ר. תוספת העץ הזו מאכלסת סאונה, אזור כושר קטן ושירותים נוחים, אידיאליים לרענון לאחר שחייה או יום של רגיעה בשמש מבלי לחזור לבית הראשי. מתחת לבית הבריכה נמצא כל חדר הטכני של הבריכה, כולל מיכל האיסוף. יתר על כן, הודות לתכונות הנכס, ניתן להתקין מערכת פוטו-וולטאית לשיפור יעילות האנרגיה.

המיקום השליו על גבעה הופך נכס זה למקום מפלט בלעדי, עם גישה נוחה לכפרים מימי הביניים וערים אמנותיות באומבריה, ומציע הזדמנויות ייחודיות למי שמעריך תרבות, טבע ואורח חיים מעודן.

תוכניות קומה

Planimetria 1

סרטון