Toscana, Sarteano

אחוזה ולברדה (Tenuta Valleverde)

€ 1.200.000

11חדרי שינה
13חדרי רחצה
1.228 מ"רשטח כולל
0,6 הקטארקרקע
כןבריכה

תיאור הנכס

אחוזה ולברדה משלבת את היציבות של אחוזה כפרית מבוססת עם הקסם האותנטי של הכפר.
שני בתי החווה, הממוקמים בטוסקנה (Tuscany), במוניציפליות של סרטאנו (Sarteano), ניצבים בסביבה שקטה ופנורמית, שבה המבט נודד על פני גבעות מתגלגלות ויערות עבותים.

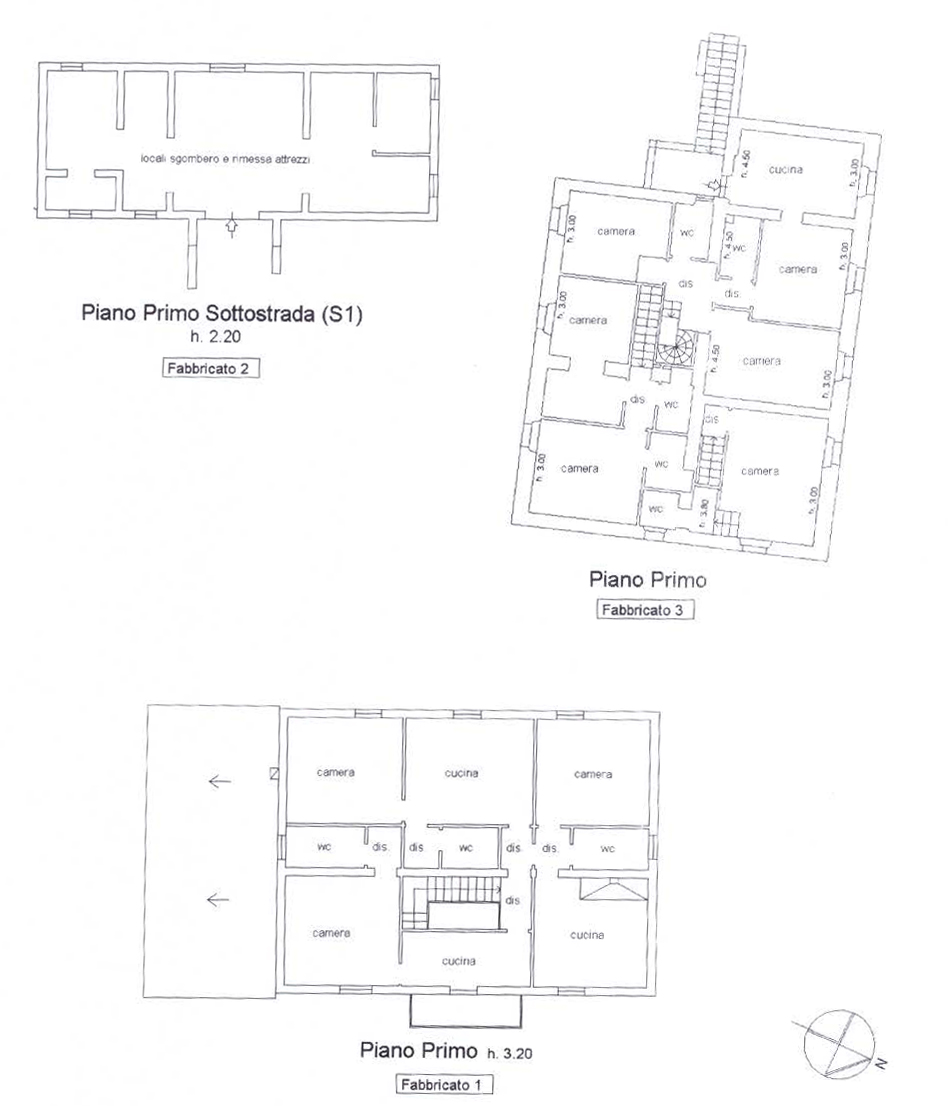
בית חווה 1
בית חווה זה משתרע על שטח של כ-320 מ"ר וכולל חזית מטויחת. בפנים, הפריסה היא כדלקמן: בקומה התחתונה יש סלון גדול עם אח, מטבח מקצועי, משרדאזור קבלה, חדר אחסון, שני חדרי אמבטיה ומרפסת המשקיפה על הנוף הירוק שמסביב. הקומה הראשונה מאכלסת שלוש דירות נפרדות, כל אחת מהן מורכבת ממסדרון, מטבח, חדר שינה זוגי וחדר אמבטיה.

בית חווה 2
בית החווה השני, בשטח של כ-350 מ"ר, בנוי מאבן ומחולק ל-5 דירות, כל אחת מהן מצוידת בסלון עם מטבחון, חדר שינה זוגי וחדר אמבטיה. חלק מהדירות הללו מחוברות, תכונה חשובה המאפשרת אפנון גמיש של החלל להתאמה לצרכים שונים.

מבני עזר ושירותים
הנכס כולל גם נספח דו-קומתי של 120 מ"ר, המשמש כיום כמחסן, עם מרפסת ותנור עצים. המתחם הושלם על ידי בריכת שחייה פרטית בגודל 12×6 מטר הממוסגרת בנוף ו-4 מבני עזראורוות.

הבידוד של המיקום, השלווה העוטפת את בתי החווה והשטחים החיצוניים העצומים מעניקים לאחוזה הזו אופי ייחודי.

הזדמנות לרכוש כ-180 דונם של קרקע, המורכבת מיער, מרעה, שדות מעובדים ומטעי זיתים (עם 130 עצים פוריים).

תוכניות קומה

Planimetria 1
Planimetria 2

אור הדר, מתווכת נדל"ן מורשית באיטליה

orhadar@homeitaly.co.il

אור הדר היא מתווכת נדל"ן מורשית המתמחה בליווי ישראלים ברכישת בתי נופש באיטליה. כילידת ישראל המתגוררת בפירנצה משנת 2015, אור מביאה עמה את היתרון הייחודי של הבנת שתי התרבויות והשפות. מומחיותה מתמקדת בהתאמת בתי נופש המשלבים את הקסם האיטלקי עם הצרכים הספציפיים של הלקוח הישראלי. כבעלת רישיון תיווך איטלקי, אור מלווה את לקוחותיה בכל שלבי הרכישה, החל מאיתור הנכס המושלם ועד להשלמת העסקה, תוך הקפדה על מקצועיות, שקיפות ותשומת לב אישית לכל פרט.

מידע נוסף ותיאום ביקור בנכס:

Or Hadar

P.iva 06699340482

© 2026 All Rights Reserved.