Toscana, Cortona

אחוזת סלטפוסי (Saltafossi)

€ 780.000

7חדרי שינה
8חדרי רחצה
728 מ"רשטח כולל
2,7 הקטארקרקע
כןבריכה

תיאור הנכס

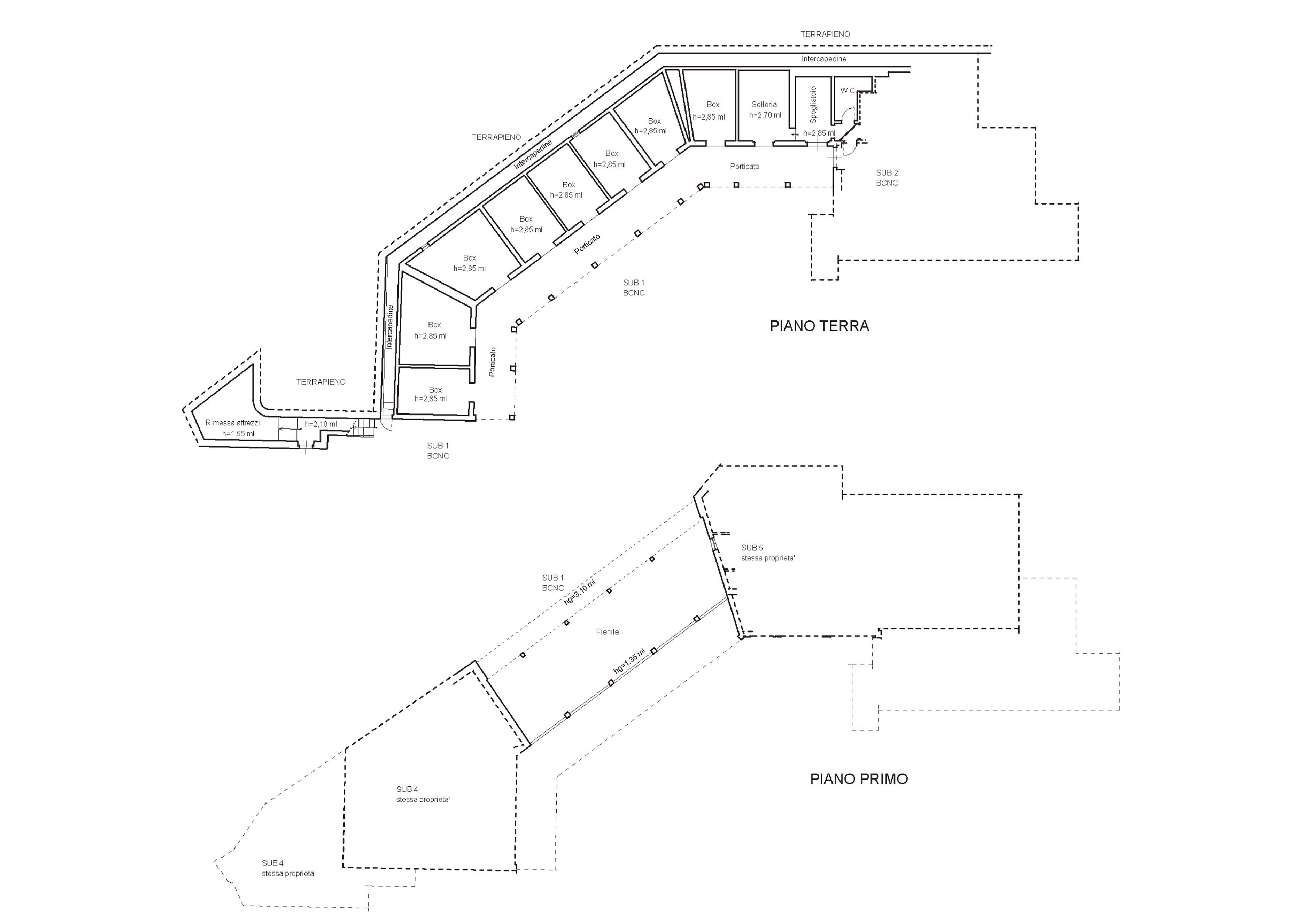
במיקום מרהיב עם נופים עוצרי נשימה ניצב רנץ' זה עם מתקנים סוסים, מושלם לאוהבי סוסים וטיולי יער רכובים. הנכס ממוקם במרחק של 10 דקות בלבד מקורטונה ומשתרע על שטח של כ-1.5 דונם. הבניין הראשי הוא מבנה אבן בשני מפלסים, המחולק ל-4 דירות נפרדות. בקומת הקרקע, הגוף המרכזי של הבניין מאכלס 8 אורוות סוסים, חדר אוכף, חדר הלבשה ושירותים, כמו גם דירה אחת הכוללת אזור מגורים, 2 חדרי שינה ו-2 חדרי רחצה.

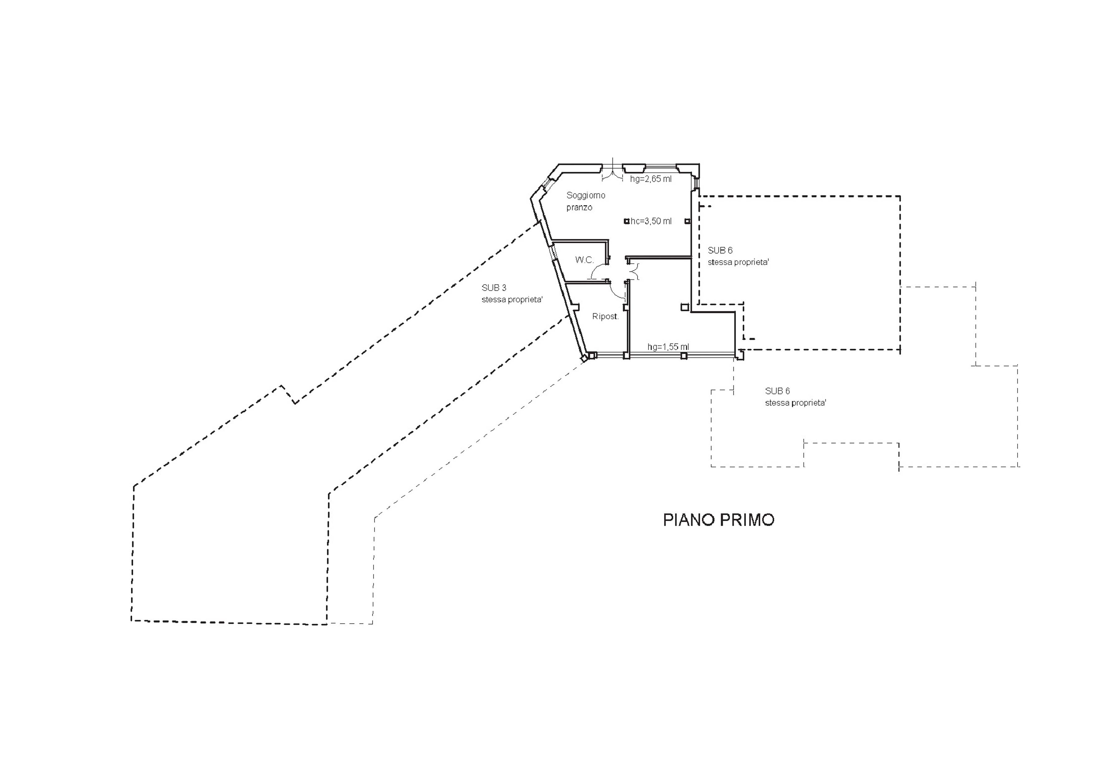
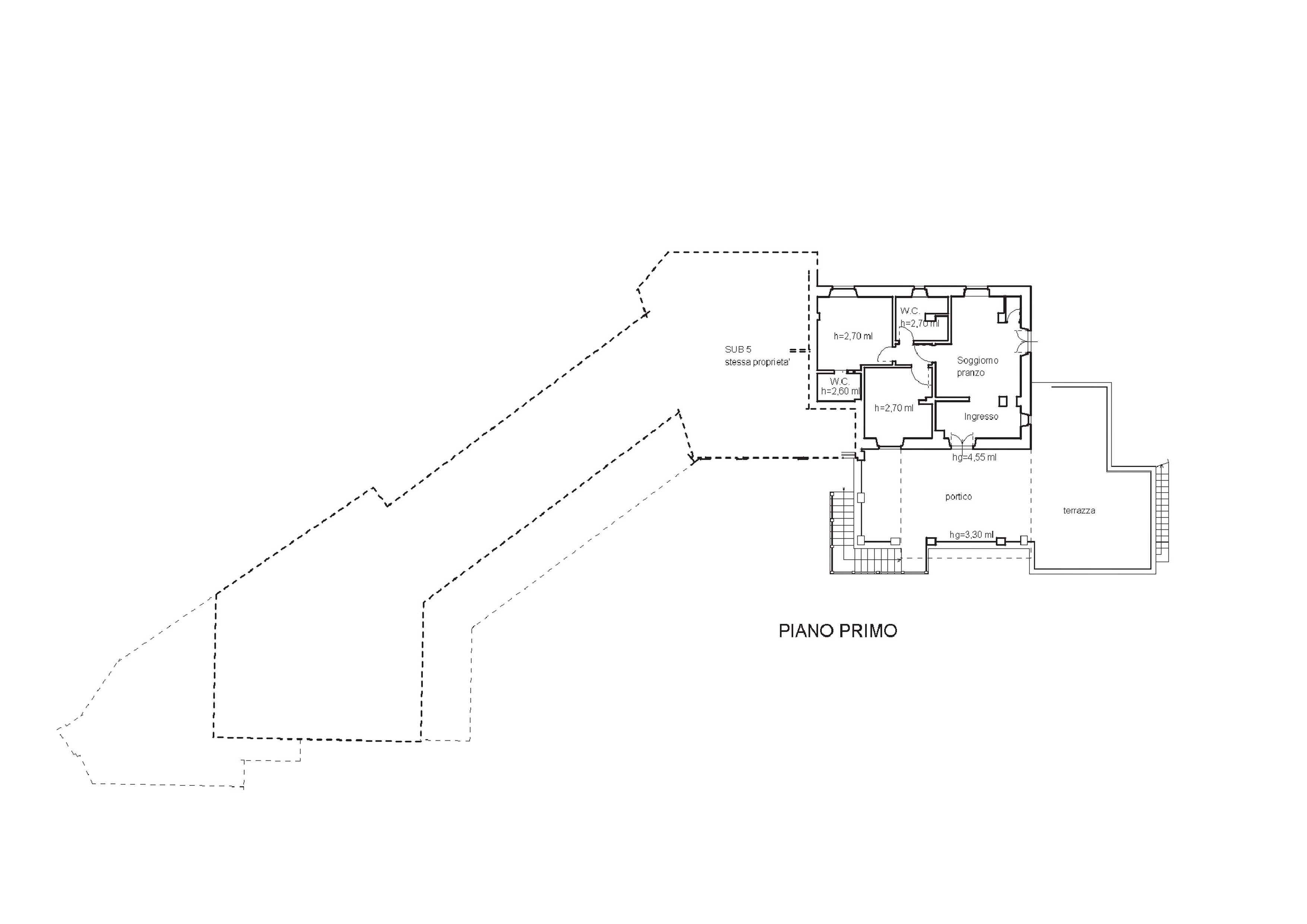
בקומה הראשונה, בצד שמאל של הבניין, ישנן שתי דירות. הראשון ניגש ממרפסת גדולה המשקיפה על העמק ומורכב ממטבח, אזור מגורים, שני חדרי שינה ושני חדרי רחצה. השני, עם כניסה מצד הגבעה, מורכב מחדר מגורים/אוכל, חדר שינה אחד, חדר אחסון ושירותים. החלק המרכזי של הבניין מעל אורוות הסוסים משמש כאסם/מבנה פתוח, פתוח בצד העלייה. הדירה האחרונה, הממוקמת בצד ימין של הבניין, כוללת סלון עם מטבח, שני חדרי שינה, שני חדרי רחצה ומרפסת גדולה, אידיאלית לארוחת ערב עם נוף יפה.

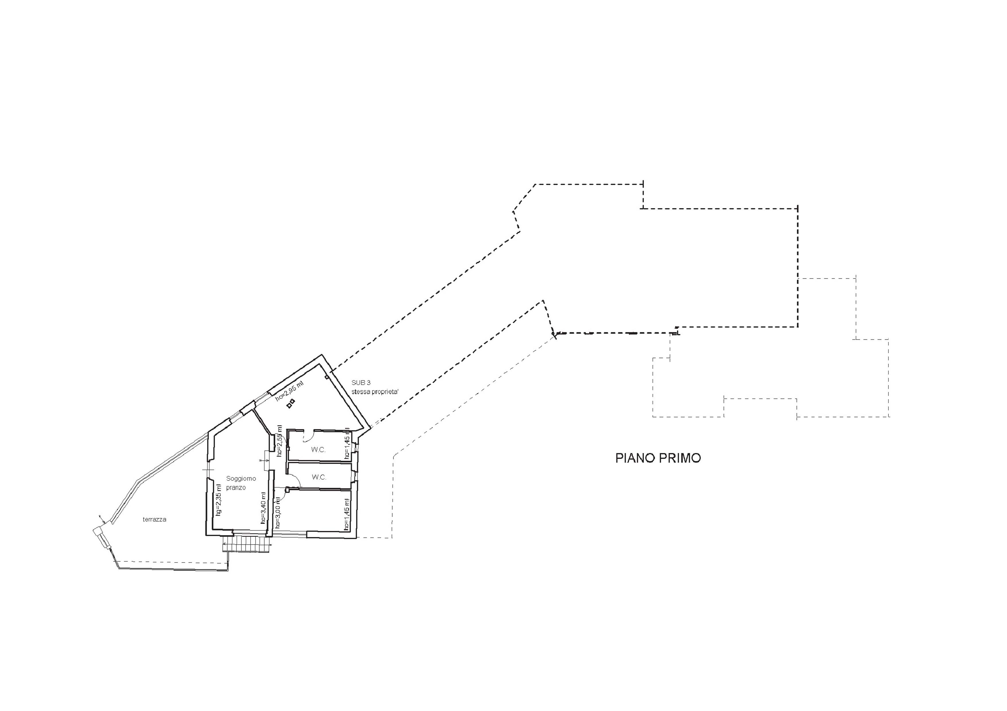
מול העמק, אך לא רחוק מהבניין הראשי, יש מבנה צדדי הכולל כניסה וסלון/מטבח, שני חדרי שינה, חדר שינה קטן ושני חדרי רחצה.

ליד הבניין הראשי יש אזור גדול ושטוח לחלוטין המשמש כמגרש רכיבה. יהיה אפשר גם לבנות בריכת שחייה. החללים הסובבים נדיבים ומציעים אפשרות ליצור אזורים שונים המיועדים לשמירת סוסים. ניתן להסב את הנכס למבנה אירוח המיועד לחובבי סוסים או להשתמש בו כמתקן סוסים פרטי.

תוכניות קומה

Planimetria 1
Planimetria 2
Planimetria 3
Planimetria 4
Planimetria 5
Planimetria 6
Planimetria 7

סרטון