Umbria, Perugia

אחוזה עתיקה גווינזאנה (Tenuta Antica Guinzana)

€ 620.000

12חדרי שינה
11חדרי רחצה
950 מ"רשטח כולל
36,0 הקטארקרקע

תיאור הנכס

יערות, עמקים ירוקים, עצי זית, נחלים, נופים בתוליים ומבנים מימי הביניים עתיקים לשיקום…
אחוזה עתיקה גווינזאנה מייצגת הזדמנות ייחודית ליצור נכס בלעדי המותאם לטעמכם, השוכן בטבע, במיקום מיוחס ופרטי, במרחק של דקות ספורות נסיעה מהעיר ושירותים.
אחוזה עתיקה גווינזאנה מורכבת מחלקה בודדת, המשתרעת על פני יותר מ-36 דונם, השוכנת על גבעה דומיננטית עם חשיפה דרום-מזרחית בעיקרה. הנכס נהנה מסביבה נופית מיוחסת, המציעה נופים פנורמיים נרחבים ומעוררי השראה של גבעות אומבריה (Umbria) שמסביב.
פרויקט שיפור חקלאי עדכני יזום באחוזה, הכולל שתילת מטעי זיתים בשטח של כ-6.5 דונם, עם 1,680 עצים נבחרים חדשים, שמטרתם הן ייצור והן מטרות נוף העולות בקנה אחד עם המסורת החקלאית של האזור.
השטח הנותר מוקדש ליערות ומרעה.
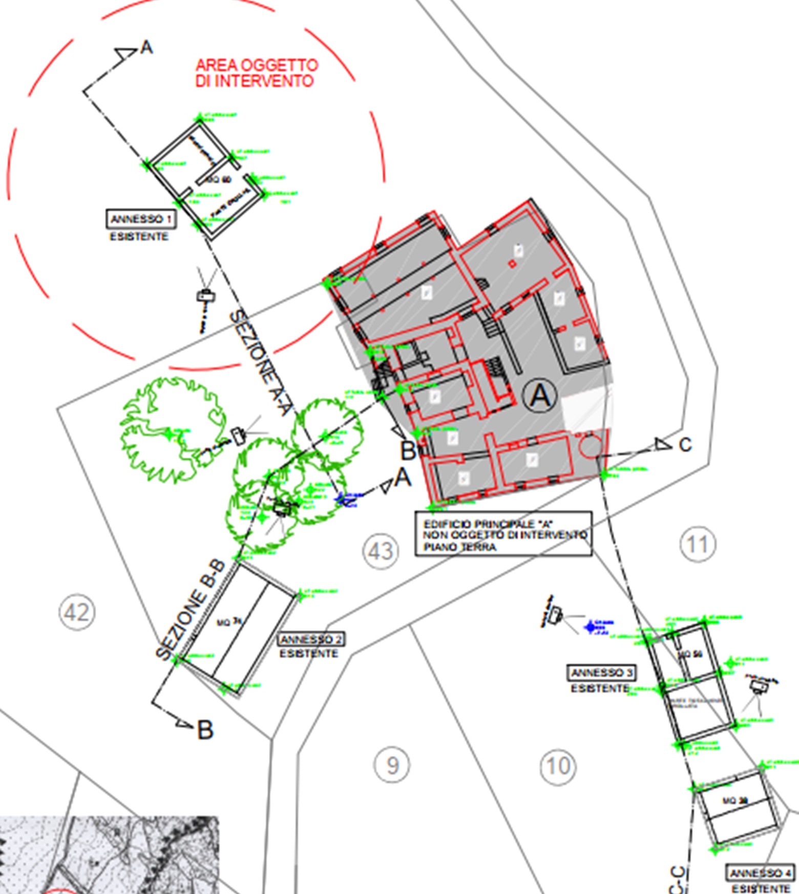
בלב האחוזה ניצב מבנה מימי הביניים משובח, בשטח כולל של כ-700 מ"ר, עבורו אושר כבר פרויקט שיקום ושחזור שימור. התערבות זו מתכננת את יצירת יחידות מגורים מרובות הכוללות 12 חדרי שינה, המתאימות לשימושים שונים למגורים או לינה תיירותית.
בנוסף למתחם הראשי, האחוזה כוללת 4 מבני משק רעועים מתקופה מאוחרת יותר, עבורם אפשרי שיקום והסבת מבנים, עם שטח בנייה פוטנציאלי כולל של עד 200 מ"ר, שניתן להשתמש בו, למשל, ליצירת בית הארחה או נפחים נלווים אחרים.

תוכניות קומה

Planimetria 1
Planimetria 2
Planimetria 3
Planimetria 4
Planimetria 5

אור הדר, מתווכת נדל"ן מורשית באיטליה

orhadar@homeitaly.co.il

אור הדר היא מתווכת נדל"ן מורשית המתמחה בליווי ישראלים ברכישת בתי נופש באיטליה. כילידת ישראל המתגוררת בפירנצה משנת 2015, אור מביאה עמה את היתרון הייחודי של הבנת שתי התרבויות והשפות. מומחיותה מתמקדת בהתאמת בתי נופש המשלבים את הקסם האיטלקי עם הצרכים הספציפיים של הלקוח הישראלי. כבעלת רישיון תיווך איטלקי, אור מלווה את לקוחותיה בכל שלבי הרכישה, החל מאיתור הנכס המושלם ועד להשלמת העסקה, תוך הקפדה על מקצועיות, שקיפות ותשומת לב אישית לכל פרט.

מידע נוסף ותיאום ביקור בנכס:

Or Hadar

P.iva 06699340482

© 2026 All Rights Reserved.