Umbria, Magione

מפלט עם נוף לאגם

€ 850.000

12חדרי שינה
10חדרי רחצה
941 מ"רשטח כולל
11,6 הקטארקרקע
כןבריכה

תיאור הנכס

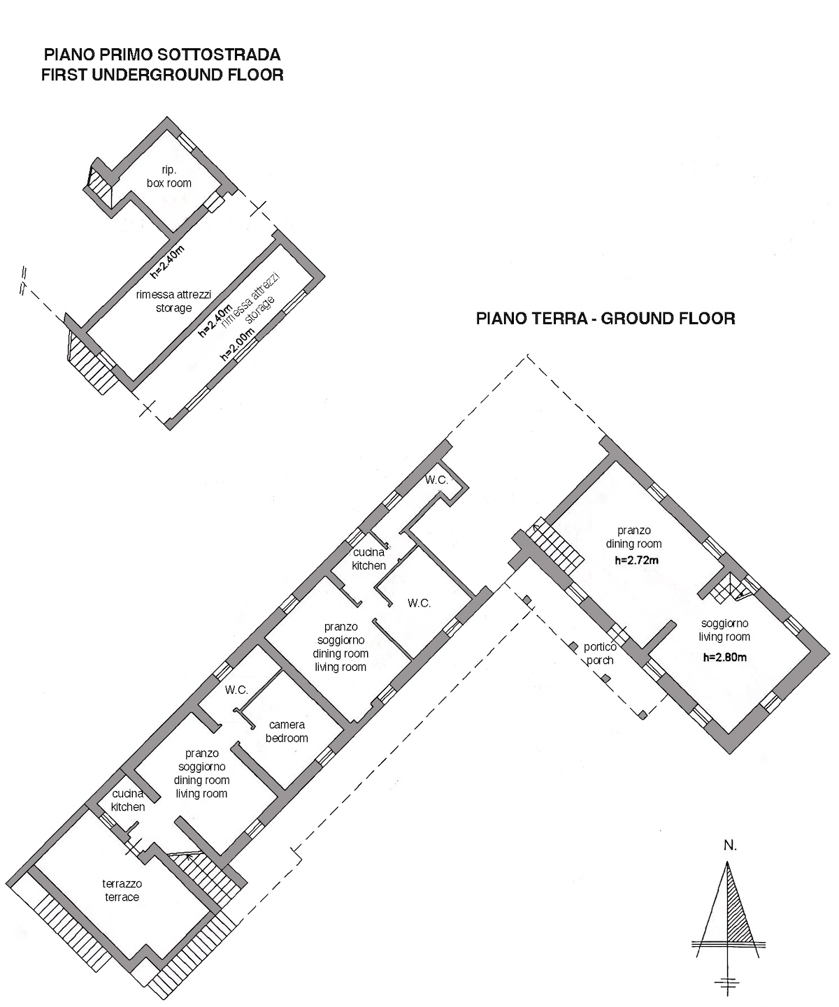
נכס זה ממתין לכם בלב הירוק של אומבריה, במחוז פרוג'יה, במרחק קצר מאגם טרסימנו. מקום ייחודי, גן עדן אמיתי מלא ביופי. הנכס ממוקם על אחד הגבעות היפים ביותר באזור ובזכות מיקומו המועדף הוא נהנה מנוף פנורמי נהדר ופרטיות רבה. הנכס מורכב משטח מסחרי כולל של כ-940 מ"ר: בית חווה מרכזי ו-2 נספחים ב-2 מפלסים (מחולקים ל-11 דירות). בקומה הקרקעית, בדירה הראשית, אנו מתקבלים בסלון מרווח עם גימורים מסורתיים ומטבח. בקומה הראשונה יש חדר שינה, אזור אחסון וחדר אמבטיה. ולבסוף, בקומה השנייה יש חדר שינה נוסף. בנוסף, בקומה הקרקעית יש עוד שתי דירות עם סלון, מטבח וחדר שינה – לאחת מהן יש מרפסת נפלאה המשקיפה על האגם. בקומה השנייה אנו מתקבלים על ידי לוג'יה נפלאה המשקיפה על האגם ועם גישה ל-2 דירות נוספות עם מטבחון, חדר שינה וחדר אמבטיה. בקומה השנייה יש דירה נוספת בסגנון מסורתי עם סלון, מטבח, חדר שינה וחדר אמבטיה. הנכס משלים גינה ירוקה ושופעת הכוללת בריכת שחייה בגודל 12 מ' x 6 מ' וכ-11.2 דונם של קרקע, כולל 7.6 דונם של מטעי זיתים פוריים. ישנם גם 2 נספחים משוחזרים. הראשון מחולק ל-2 דירות עצמאיות: אחת משופצת, והשנייה זקוקה לכמה עבודות. הנספח השני מאכלס 2 דירות מיני. בנוסף, יש מוסך, מחסן ומגרש בנייה של כ-94 מ"ר. נכס נפלא זה עם הפארק הירוק ובריכת השחייה הוא המקום המושלם להירגע וליהנות מנופים נפלאים של אגם טרסימנו והגבעות שמסביב.
אומבריה (Umbria) , פרוג'יה (Perugia) , טרסימנו (Trasimeno)

תוכניות קומה

Planimetria 1
Planimetria 2
Planimetria 3
Planimetria 4
Planimetria 5

סרטון