Umbria, Castiglione del Lago

פודרה פלאצו ואל דל סאסו (Podere Palazzo Val del Sasso)

€ 1.580.000

17חדרי שינה
13חדרי רחצה
1.765 מ"רשטח כולל
10,8 הקטארקרקע
כןבריכה

תיאור הנכס

הנכס נפרש כמו כפר פרטי מקסים, המורכב מחווה היסטורית, שתי וילות עצמאיות ובית אורחים נפרד, המועשר בסדרה של מבני משק ומתקנים נלווים. זהו פתרון אידיאלי עבור אלה המחפשים איזון מושלם בין אירוח, נוחות מגורים, עצמאות וסביבה טבעית ביופי נדיר.

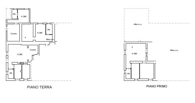
החווה, עדות אמיתית למסורת האדריכלית של אומבריה (Umbria), שוחזרה בקפידה לאורך השנים ומאכלסת כיום שבע דירות עצמאיות, כולן מושכרות כהשכרות לטווח קצר. כל יחידה משתנה בגודלה ובפריסתה, הפרוסה על פני שלוש קומות:
– בקומת הקרקע: שלוש יחידות בשטח של כ-44 מ"ר, 45 מ"ר ו-75 מ"ר;
– בקומה הראשונה: דירה אחת בשטח של כ-72 מ"ר;
– בקומה השנייה: שתי יחידות בשטח של כ-64 מ"ר ו-112 מ"ר;
– יחידה סופית אחת משתרעת על שתי קומות (ראשונה ושנייה), בסך הכל כ-156 מ"ר.
כל דירה שומרת על האופי הכפרי והמזמין של המבנה המקורי, ומציעה חללים מוארים ונופים קסומים על הצמחייה השופעת.

שתי וילות עצמאיות, שלכל אחת מהן זהות ייחודית, משפרות עוד יותר את הנכס.
הווילה הראשונה, שנבנתה בשנת 2000, משתרעת על שתי קומות בשטח כולל של כ-181 מ"ר. קומת הקרקע כוללת כניסה, מטבח עם גישה ישירה למרפסת החיצונית, פינת אוכל, סלון ובריכה מקורה מחוממת משובחת בטמפרטורה של 38°C, שנוספה בשנת 2016 כנסיגה מרגיעה ואינטימית לאורך כל השנה. בקומה העליונה, אזור השינה כולל שני חדרי שינה וחדר אמבטיה, בעוד שהמרתף מציע כ-69 מ"ר של חדרים נלווים, מושלמים ליקב, אחסון או חללים טכניים.
הנכס במצב טוב וישופר עוד יותר באמצעות עבודות שיפור שיתבצעו על ידי הבעלים הנוכחיים. העבודות יתקדמו כמתוכנן, תוך מתן אפשרות לקונה להתאים אישית גימורים מסוימים במהלך הפרויקט.
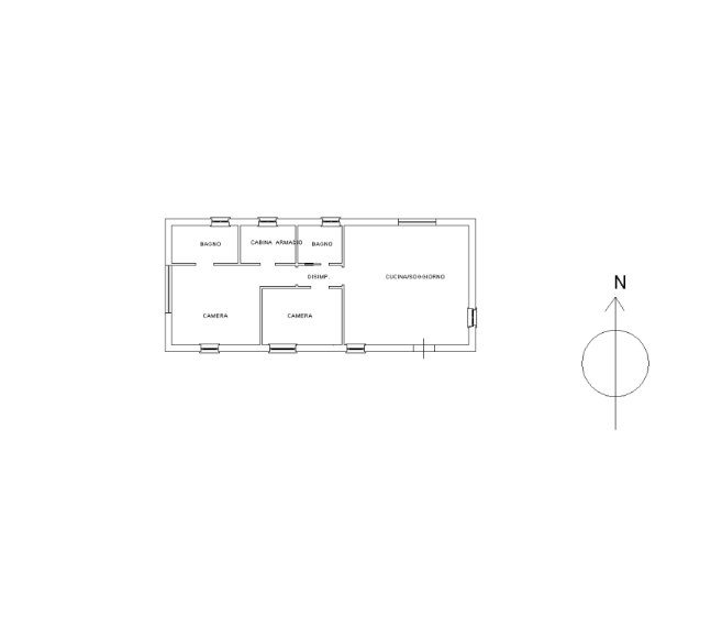
הווילה השנייה, שהושלמה בשנת 2023, ממחישה את הנשמה העכשווית יותר של הנכס. היא מתפתחת על קומה אחת בשטח של כ-86 מ"ר, ומציעה חללים מודרניים ופונקציונליים עם גימורים איכותיים ופריסה מעוצבת בקפידה המתמקדת בנוחות היומיומית: כניסה, סלון עם מטבחון, מסדרון, שני חדרי שינה, שני חדרי אמבטיה וחדר אחסון נוח המשמש כחדר הלבשה. אחד משיאי הנכס הוא המרפסת הפנורמית המתהדרת בנופים עוצרי נשימה של הכפר הסובב – מקום מושלם לארוחות בוקר בחוץ, רגעים של קריאה או פשוט לספוג את גווני השקיעה. המרתף מאכלס חללים נלווים נוספים: כ-85 מ"ר של חדרי יקב, מחסן בשטח 15 מ"ר ומוסך בשטח 58 מ"ר.

הנכס כולל גם תלות עצמאית בשטח של כ-45 מ"ר, הכוללת סלון עם מטבחון, חדר שינה וחדר אמבטיה – אידיאלי לאורחים, צוות או כסוויטה מסבירת פנים.
מבני משק שונים משולבים בהרמוניה בתוך הנכס, ומדגישים את הרבגוניות הפונקציונלית שלו. חללים ייעודיים להכנה והגשה של ארוחת בוקר, תנורי לבנים כפריים, חדרי טכניים, יחידות אחסון ואזור כביסה נוח מסודרים בתבונה כדי לתמוך בפעילויות אירוח או להבטיח ניהול יומיומי נוח.

כל זה ממוקם בתוך אחוזה נפלאה בשטח של 10.7 דונם העוטפת את הנכס כמו פארק טבע פרטי. הנוף הוא אוצר נדיר, המועשר על ידי 1,500 עצי זית המעצבים בחן את הגבעות המתגלגלות בסדר ושירה. בליבו של ההגדרה האידילית הזו שוכנת בריכת שחייה חיצונית בגודל 6×12 מטר, מושלמת לקבלת אורחים ולהציע רגעים של הרפיה אמיתית בשלווה מוחלטת.

תוכניות קומה

Planimetria 1
Planimetria 2
Planimetria 3
Planimetria 4
Planimetria 5
Planimetria 6

אור הדר, מתווכת נדל"ן מורשית באיטליה

orhadar@homeitaly.co.il

אור הדר היא מתווכת נדל"ן מורשית המתמחה בליווי ישראלים ברכישת בתי נופש באיטליה. כילידת ישראל המתגוררת בפירנצה משנת 2015, אור מביאה עמה את היתרון הייחודי של הבנת שתי התרבויות והשפות. מומחיותה מתמקדת בהתאמת בתי נופש המשלבים את הקסם האיטלקי עם הצרכים הספציפיים של הלקוח הישראלי. כבעלת רישיון תיווך איטלקי, אור מלווה את לקוחותיה בכל שלבי הרכישה, החל מאיתור הנכס המושלם ועד להשלמת העסקה, תוך הקפדה על מקצועיות, שקיפות ותשומת לב אישית לכל פרט.

מידע נוסף ותיאום ביקור בנכס:

Or Hadar

P.iva 06699340482

© 2026 All Rights Reserved.