Toscana, Montalcino

פודרה לה סלצ'טה (Podere La Salceta)

€ 560.000

8חדרי שינה
4חדרי רחצה
634 מ"רשטח כולל
4,4 הקטארקרקע

תיאור הנכס

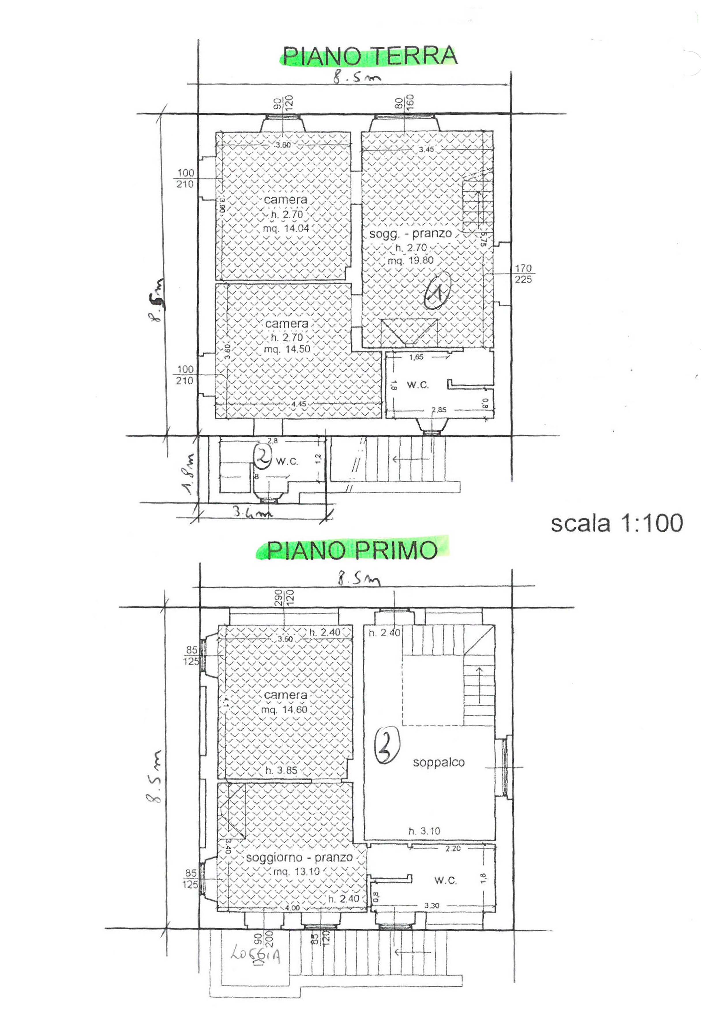
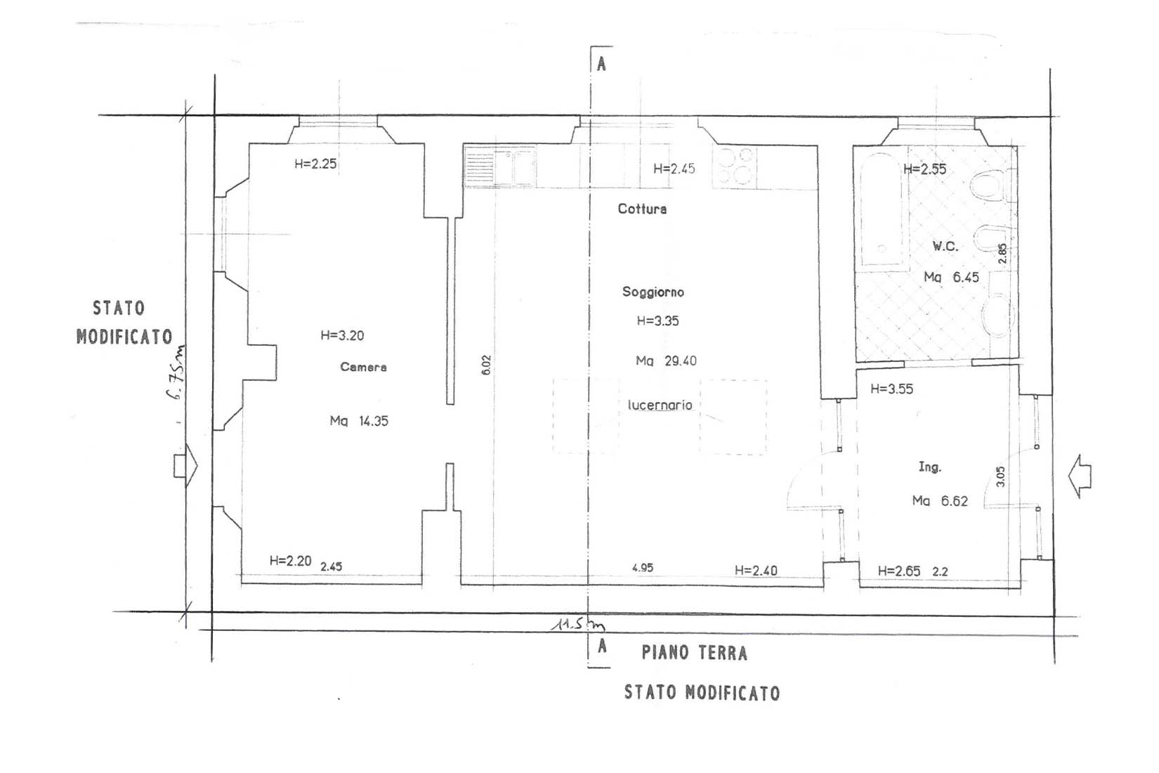
המבנה הראשי משתרע על פני שתי קומות בשטח כולל של כ-432 מ"ר ובמצב מבני טוב, אם כי זקוק לשיפוץ מקיף; בקומת הקרקע נמצאים מרתפי היין העתיקים, חדרים גדולים עם גבהים משמעותיים, שיכולים להפוך לסלון מפואר לאחר השלמת השיפוץ; בקומה הראשונה 5 חדרים גדולים המחוברים במסדרון מרכזי גדול. המבנה השני (אורווה לשעבר) שופץ בשנת 2002 ומשתרע על פני שתי קומות בשטח כולל של 150 מ"ר; כאן בקומת הקרקע נמצאת דירה המורכבת משלושה חדרים, שני חדרי אמבטיה ועליית גג ובקומה הראשונה, הנגישה במדרגות חיצוניות, יש דירת שני חדרים נוספת עם חדר אמבטיה. המבנה השלישי מורכב ממחסן בקומת קרקע אחת בשטח של כ-78 מ"ר עם חדר אמבטיה. הכל מוקף בכ-4 דונם אדמה, רובם מיוער.

תוכניות קומה

Planimetria 1
Planimetria 2
Planimetria 3
Planimetria 4
Planimetria 5
Planimetria 6
Planimetria 7
Planimetria 8

אור הדר, מתווכת נדל"ן מורשית באיטליה

orhadar@homeitaly.co.il

אור הדר היא מתווכת נדל"ן מורשית המתמחה בליווי ישראלים ברכישת בתי נופש באיטליה. כילידת ישראל המתגוררת בפירנצה משנת 2015, אור מביאה עמה את היתרון הייחודי של הבנת שתי התרבויות והשפות. מומחיותה מתמקדת בהתאמת בתי נופש המשלבים את הקסם האיטלקי עם הצרכים הספציפיים של הלקוח הישראלי. כבעלת רישיון תיווך איטלקי, אור מלווה את לקוחותיה בכל שלבי הרכישה, החל מאיתור הנכס המושלם ועד להשלמת העסקה, תוך הקפדה על מקצועיות, שקיפות ותשומת לב אישית לכל פרט.

מידע נוסף ותיאום ביקור בנכס:

Or Hadar

P.iva 06699340482

© 2026 All Rights Reserved.