Toscana, Cortona

פודרה קאבור (Podere Cavour)

€ 750.000

4חדרי שינה
3חדרי רחצה
526 מ"רשטח כולל
0,5 הקטארקרקע

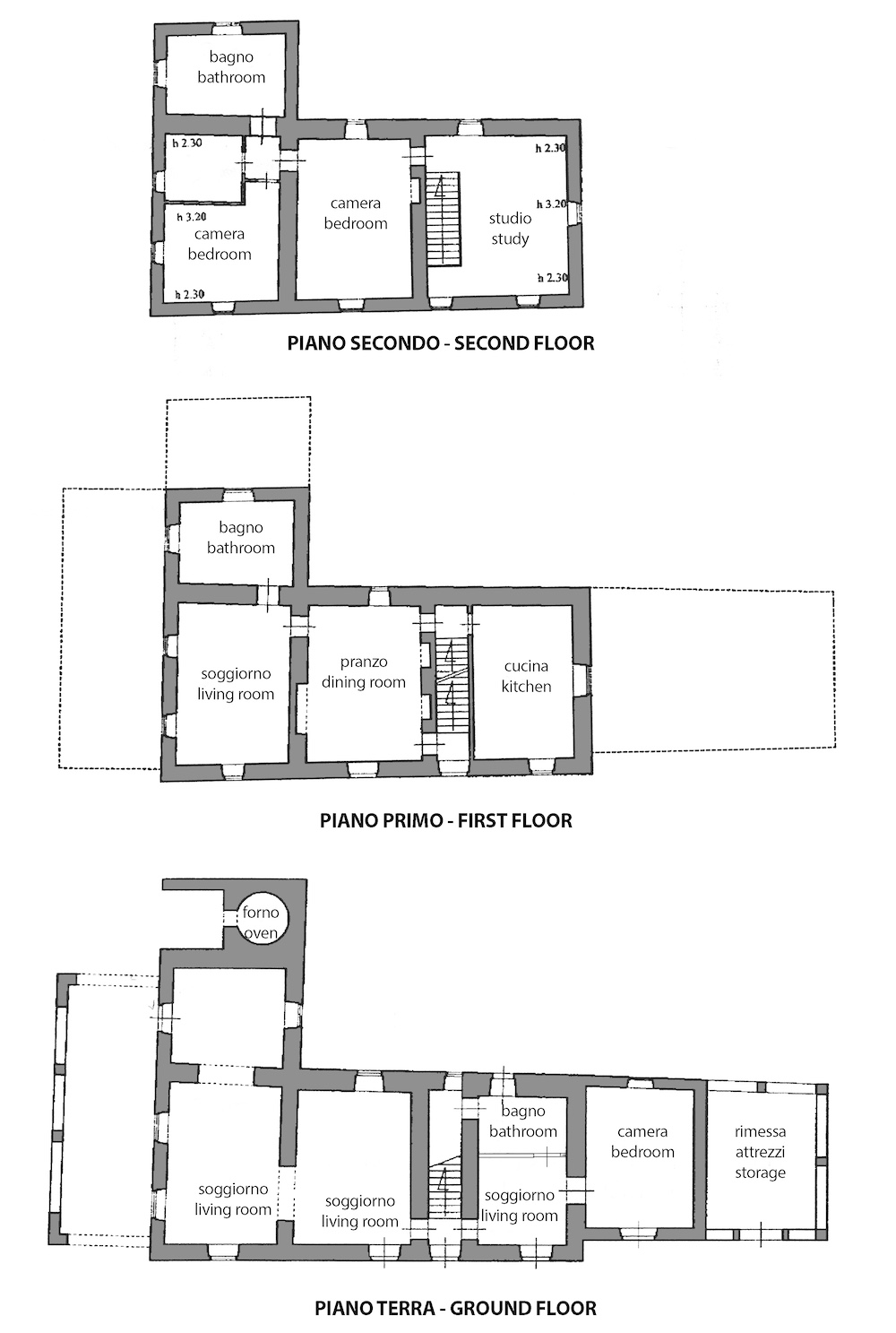
תיאור הנכס

עם שטח מחיה ברוטו של כ-400 מ"ר, נכס מפואר זה בן 3 קומות מורכב ממגוון חללים המציעים נוחות ופונקציונליות, והשילוב המושלם בין העתיק לעכשווי מאפשר לכם לחיות בקסם הכפרי של העבר מבלי לוותר על נוחות מודרנית. בכניסה, אתם מתקבלים על ידי סלון כפול ומרווח ומואר, אידיאלי לקבלת אורחים או בילוי עם המשפחה. המטבח הוא שילוב של מסורת ומודרניות, וכן נמצא חדר שינה וחדר אמבטיה. בעלייה במדרגות, תמצאו סלון נוסף עם אח עתיק, המוסיף נופך של מסורת. נמצאת מטבח שני המשקיף על המרפסת בקומה הראשונה, המשך מוביל לחדר שינה ראשי וחדר אמבטיה המשלים את קומה זו של הבית. הקומה השנייה, אליה מגיעים דרך מסדרון אלגנטי, כוללת שני חדרי שינה וחדר אמבטיה, ומבטיחה מרחב ופרטיות לכולם. בחוץ, הפרגולה מזמינה להירגע וליהנות, עם אח לפיצה או מנגל המבטיח רגעים חברתיים. הגינה, גדולה ופרטית, מציעה נווה מדבר של פרטיות ושלווה. בית חווה זה אידיאלי למי שמחפש בית מלא אופי, עם חללים נוחים המתאימים גם לחיים היומיומיים וגם לאירוח.

תוכניות קומה

Planimetria 1

סרטון