Toscana, Rapolano Terme

פודרה אלבדו (Podere Albedo)

€ 670.000

7חדרי שינה
4חדרי רחצה
987 מ"רשטח כולל
5,2 הקטארקרקע
כןבריכה

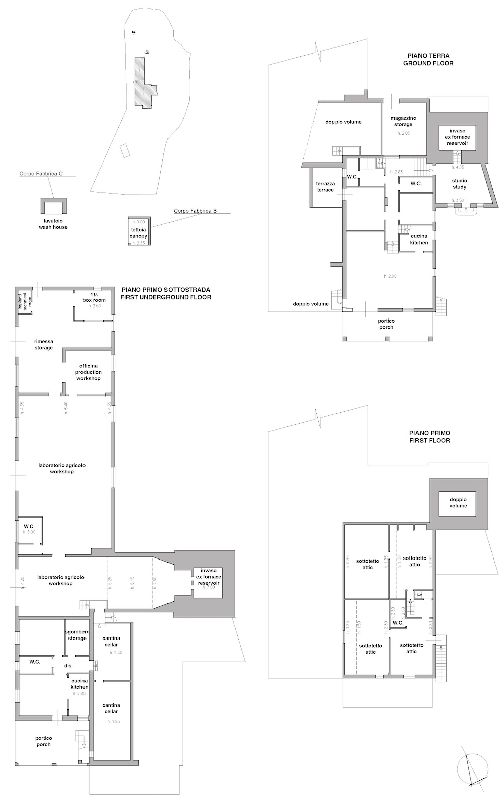
תיאור הנכס

הנכס מציע שטח מגורים ברוטו של כ-380 מ"ר המחולק לשלוש קומות: בקומת הקרקע, ישנם סלון גדול עם מטבח מודרני ואח שיוצר אווירה חמה ומזמינה. בנוסף, בקומה זו ישנם שלושה חדרי שינה המציעים מרחב ונוחות, כמו גם חדר אמבטיה וחדר עבודה. מחדר העבודה ניתן לגשת למגדלון המציע נופים פנורמיים עוצרי נשימה. בקומה העליונה נמצא סלון מזמין נוסף, שני חדרי שינה וחדר אחסון שהופכים את הקומה הזו לאידיאלית לאורחים. לבסוף, במרתף יש דירה קטנה הכוללת מטבח מאובזר היטב, סלון נוח, חדר שינה, חדר אמבטיה וחדר עבודה, אידיאלי למי שמחפש מרחב שקט לעבודה או ללימודים. בחוץ, הנכס ממשיך עם שתי מרפסות גדולות ומקסימות, אידיאליות לסעוד בחוץ או לרגעים של רגיעה בשקיעה. נספח חקלאי בשטח של כ-380 מ"ר מציע אפשרויות אינסופיות, בעוד שבריכת השחייה בגודל 12 x 5 מטר היא נווה מדבר של רעננות בימי הקיץ החמים. הנכס מוקף בכ-5.1 דונם אדמה: כ-1 דונם מיועד לפארק/גן וה-4.1 דונם הנותרים הם אדמה חקלאית באיכות מעובדת, מטעי זיתים עם כ-600 עצי זית ויער.

תוכניות קומה

Planimetria 1