Umbria, Passignano sul Trasimeno

פלאצו פלמיניו

€ 1.700.000

28חדרי שינה
30חדרי רחצה
1.500 מ"רשטח כולל
0,2 הקטארקרקע
כןבריכה

תיאור הנכס

  • הנכס הזה, השוכן בלב כפר מימי הביניים, עומד בגאווה כמבצר היסטורי עתיק יומין, השומר על עידנים חולפים ומציע נוף עוצר נשימה של אגם טרזימנו השוכן בשלווה למרגלותיו.

  • הנכס מאופיין בחללים גדולים ומוארים, ומשתרע על פני ארבע קומות, ומשתרע על שטח כולל של כ-1,500 מ"ר. תוכנן כאמצעי אירוח ברמה גבוהה, מתחם המגורים ההיסטורי הזה מהמאה ה-17 מורכב מ-28 חדרי שינה עם חדרי אמבטיה צמודים, וחדרים מרווחים המיועדים לאירוח פגישות וטקסים, שני חדרי כנסים, מטבח מקצועי וטרסות פנורמיות מפוארות עם בריכת שחייה חיצונית בגודל 7×14 ובר בריכה, מושלמים לרגעים של יוקרה ורגיעה בהקשר נופי עשיר בהיסטוריה, טבע וקסם.

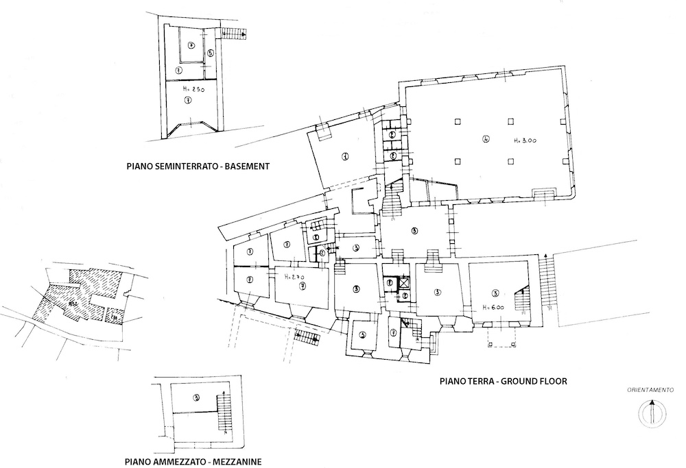
תוכניות קומה

Planimetria 1
Planimetria 2
Planimetria 3

מרחקים

  • "מתקני סקי 93
  • שדה תעופה 38
  • Bank: 9
  • קולנוע 20
  • בית חולים 22
  • אגם 5
  • "Railway תחנה 8
  • School: 11
  • ים 160
  • סופרמרקט 9
  • "צמתים ראשיים 8
  • תיאטרון 0

אור הדר, מתווכת נדל"ן מורשית באיטליה

orhadar@homeitaly.co.il

אור הדר היא מתווכת נדל"ן מורשית המתמחה בליווי ישראלים ברכישת בתי נופש באיטליה. כילידת ישראל המתגוררת בפירנצה משנת 2015, אור מביאה עמה את היתרון הייחודי של הבנת שתי התרבויות והשפות. מומחיותה מתמקדת בהתאמת בתי נופש המשלבים את הקסם האיטלקי עם הצרכים הספציפיים של הלקוח הישראלי. כבעלת רישיון תיווך איטלקי, אור מלווה את לקוחותיה בכל שלבי הרכישה, החל מאיתור הנכס המושלם ועד להשלמת העסקה, תוך הקפדה על מקצועיות, שקיפות ותשומת לב אישית לכל פרט.

מידע נוסף ותיאום ביקור בנכס:

Or Hadar

P.iva 06699340482

© 2026 All Rights Reserved.