Toscana, San Casciano dei Bagni

הנוף (La Vista)

€ 1.550.000

6חדרי שינה
6חדרי רחצה
567 מ"רשטח כולל
3,0 הקטארקרקע
כןבריכה

תיאור הנכס

בנכס זה ברור לחלוטין כיצד הנוף עוצב מחדש ושונה בתבונה על ידי עבודת אדם: מכל זווית ניתן להעריך את שילוב של מטעי זיתים, כרמים ובתי חווה, המאפיינים את הנוף הטוסקני.
בתרחיש המפואר הזה, אנו מוצאים את בית החווה הזה למכירה, עם בית אורחים, קרקע ובריכת שחייה.
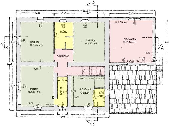
המבנה הראשי שוחזר במהלך שנות ה-90 ומכסה שטח של כ-400 מ"ר בשתי קומות: בקומה הקרקעית יש כניסה, סלון/פינת אוכל גדולה עם אח, מטבח עם מזווה, חדר אמבטיה ומערכת תרמית עם גישה מבחוץ; בקומה הראשונה ישנם ארבעה חדרי שינה ושלושה חדרי אמבטיה; באותו בניין, עם גישה עצמאית, בקומה הקרקעית יש מרתף בשטח של כ-70 מ"ר (שאותו ניתן להפוך בקלות ליחידת מגורים), בעוד שבקומה הראשונה יש חדר אחסון בשטח של כ-40 מ"ר.
הנכס כולל בית אורחים מקסים של 120 מ"ר בקומה אחת, המורכב מאזור מגורים/מטבח גדול עם אח, שני חדרי שינה ושני חדרי אמבטיה, אחד עם מקלחת ואחד עם ג'קוזי.
בתוך שטח ה-2 דונם, אנו מוצאים בית לבנים מקסים של 12 מ"ר עם תנור עתיק, להכנת המנות האופייניות והאותנטיות של האזור, מבנה חקלאי של 27 מ"ר (המשמש כחדר אחסון ולול), מערה/מרתף אופייני ובריכת שחייה יפהפייה בגודל 6×12 מ'.

מאפיינים פנימיים

  • חדר אמבטיה עם מקלחת
  • חדר אמבטיה עם אמבטיה
  • ריצוף טרקוטה

מאפיינים חיצוניים

  • נוף פתוח

תוכניות קומה

Planimetria 1
Planimetria 2
Planimetria 3
Planimetria 4

מרחקים

  • בית חולים 40
  • תחנה 6
  • Theatres/קולנוע 25
  • סופרמרקט 6
  • בנקים 6
  • "יציאת כביש מהיר 6
  • בתי ספר 6
  • חנויות 6
  • אגם 35
  • ים 100
  • ערים/עיירות/כפרים 1
  • שדה תעופה 100