Toscana, San Miniato

בית מינה

€ 1.390.000

8חדרי שינה
9חדרי רחצה
1.043 מ"רשטח כולל
4,3 הקטארקרקע
כןבריכה

תיאור הנכס

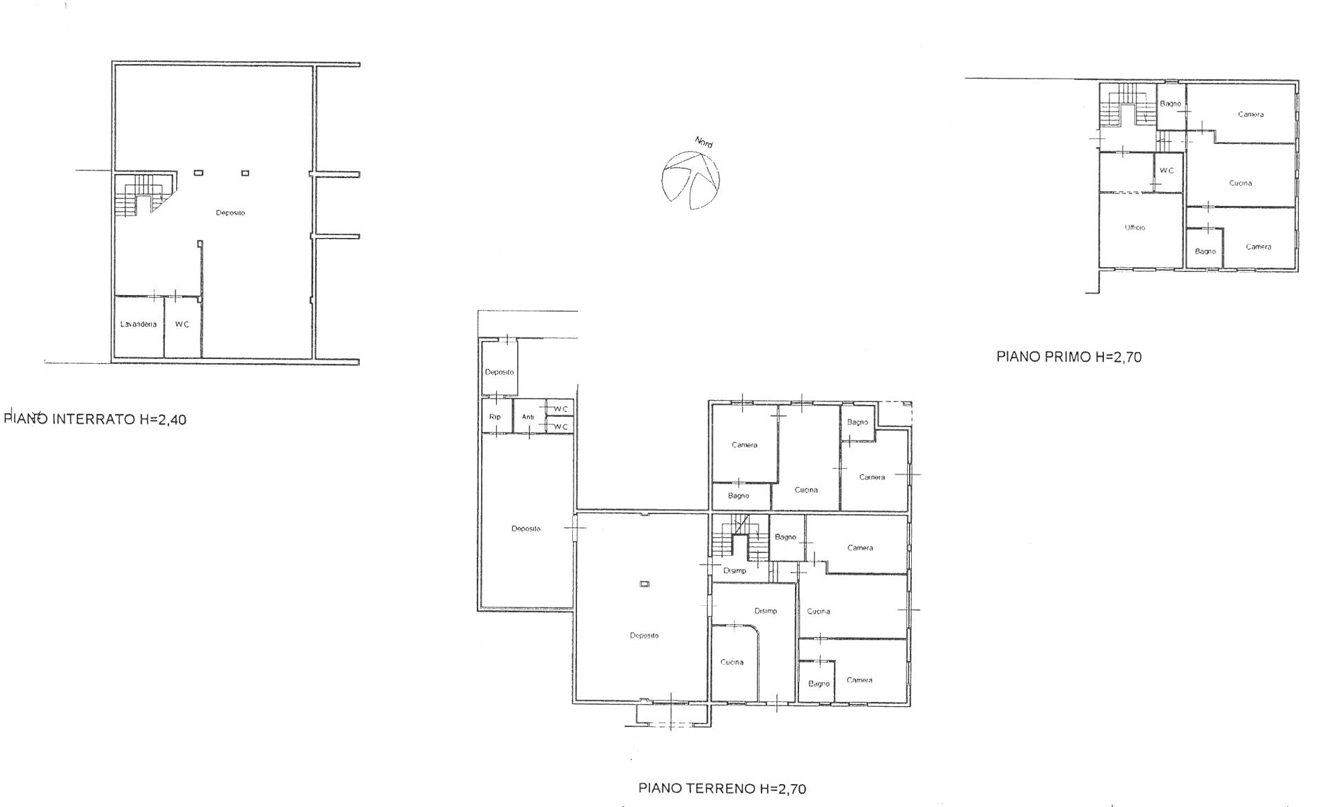
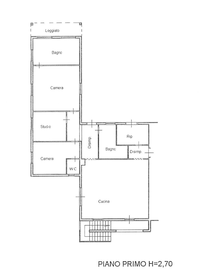
בית חווה בשטח של כ-680 מ"ר, ששופץ לחלוטין בשנת 2006, הממוקם על מדרון גבעה שבפסגתו נמצאת בריכת השחייה היפהפייה בגודל 14×7.2 מטר עם מערכת מים מלוחים. בית החווה מחולק ל-3 דירות, כל אחת עם 2 חדרי שינה עם חדר רחצה, מטבחון ופינת ישיבה. שתי דירות משמשות כיום להשכרה תיירותית. הדירה הגדולה מאוד האחרת משמשת כבית אחוזה ומורכבת ממטבח פתוח גדול, סלון, פינת אוכל, 2 חדרי שינה, 1 משרד, 1 ארון, 3 חדרי רחצה. כמה צעדים מבית החווה נמצא מרתף קטן בשטח של כ-200 מ"ר המשמש לייצור ושמירה של שמן. הנכס הושלם עם כ-4.2 דונם של קרקע.

תוכניות קומה

Planimetria 1
Planimetria 2
Planimetria 3

אור הדר, מתווכת נדל"ן מורשית באיטליה

orhadar@homeitaly.co.il

אור הדר היא מתווכת נדל"ן מורשית המתמחה בליווי ישראלים ברכישת בתי נופש באיטליה. כילידת ישראל המתגוררת בפירנצה משנת 2015, אור מביאה עמה את היתרון הייחודי של הבנת שתי התרבויות והשפות. מומחיותה מתמקדת בהתאמת בתי נופש המשלבים את הקסם האיטלקי עם הצרכים הספציפיים של הלקוח הישראלי. כבעלת רישיון תיווך איטלקי, אור מלווה את לקוחותיה בכל שלבי הרכישה, החל מאיתור הנכס המושלם ועד להשלמת העסקה, תוך הקפדה על מקצועיות, שקיפות ותשומת לב אישית לכל פרט.

מידע נוסף ותיאום ביקור בנכס:

Or Hadar

P.iva 06699340482

© 2026 All Rights Reserved.