Umbria, Orvieto

לה קאראוולה בירוק אזמרגד

€ 1.090.000

3חדרי שינה
3חדרי רחצה
460 מ"רשטח כולל
0,0 הקטארקרקע

תיאור הנכס

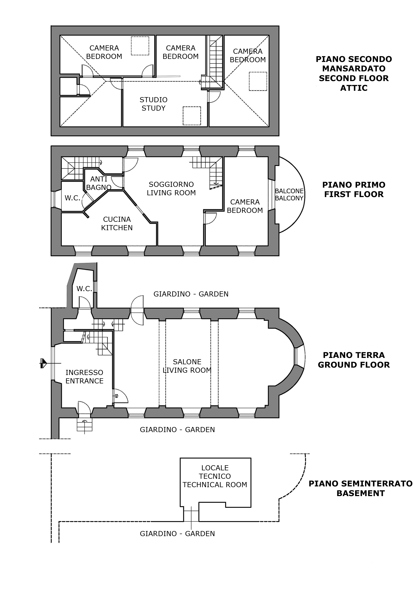
בקצה הצוק המקסים של אורבייטו, במרכז ההיסטורי של העיר, אנו מוצאים את הארמון היוקרתי הזה מהמאה ה-15, עם מרפסת, גינה פרטית ונוף פנורמי מרהיב ומערה משוחזרת. נכס זה הוא אחד הוילות העצמאיות הבודדות בעיר ושוחזר בצורה מושלמת עם חומרים ברמה גבוהה, תוך שמירה על המאפיינים המקוריים במידת האפשר. הוילה משתרעת על שטח של 300 מ"ר בשלוש קומות בתוספת מערה: בקומת הקרקע יש עליית גג המשמשת להשכרת נופש, המורכבת מכניסה גדולה עם השער העתיק המקורי, סלון מפואר עם קשתות וכיפות לבנים, מטבחון, מיטת חופה וחדר אמבטיה; בקומה העליונה נמצאת דירה המורכבת מכניסה/סלון מואר, חדר קריאה עם מרפסת מעגלית, מטבח גדול, חדר אמבטיה וחדר שירות בקומת הקרקע, וכניסה/חדר קריאה, שתי חדרי שינה וחדר אמבטיה בקומה העליונה. המערה בשטח של כ-100 מ"ר ניתנת להסבה לספא מקסים. נכס בלעדי זה שוחזר לחלוטין ומתגאה בפארק/גינה מגודר לחלוטין בשטח של 500 מ"ר, עם פרגולה מברזל יצוק, מחסן עץ קטן ומרפסת מצוידת פנורמית מאוד, ממנה ניתן ליהנות מהנוף המרהיב של העיר והאזורים הכפריים של אומבריה (Umbria) וטוסקנה (Tuscany). הנכס כולל מקום לחניה עם שער גישה משותף לעיריית אורבייטו. לקבלת מידע על תנאי המכירה, מחירים וריהוט, צרו קשר עם הסוכנות.

מאפיינים פנימיים

  • דלת משוריינת
  • חדר אמבטיה עם מקלחת
  • חדר אמבטיה עם אמבטיה
  • כניסות מרובות
  • ריצוף קרמיקה
  • גלאי עשן
  • מערכת אזעקה

מאפיינים חיצוניים

  • נוף לעיר
  • נוף לגינה
  • פנורמי
  • נוף לרחוב
  • נוף לפארק
  • נוף פתוח

תוכניות קומה

Planimetria 1
Planimetria 2

מרחקים

  • "יציאת כביש מהיר 3
  • בתי ספר 0
  • בית חולים 3
  • תחנה 2
  • שדה תעופה 120
  • ערים/עיירות/כפרים 0
  • "מתקני סקי 40
  • Theatres/קולנוע 0
  • ים 100
  • אגם 35
  • חנויות 0
  • סופרמרקט 0
  • בנקים 0

אור הדר, מתווכת נדל"ן מורשית באיטליה

orhadar@homeitaly.co.il

אור הדר היא מתווכת נדל"ן מורשית המתמחה בליווי ישראלים ברכישת בתי נופש באיטליה. כילידת ישראל המתגוררת בפירנצה משנת 2015, אור מביאה עמה את היתרון הייחודי של הבנת שתי התרבויות והשפות. מומחיותה מתמקדת בהתאמת בתי נופש המשלבים את הקסם האיטלקי עם הצרכים הספציפיים של הלקוח הישראלי. כבעלת רישיון תיווך איטלקי, אור מלווה את לקוחותיה בכל שלבי הרכישה, החל מאיתור הנכס המושלם ועד להשלמת העסקה, תוך הקפדה על מקצועיות, שקיפות ותשומת לב אישית לכל פרט.

מידע נוסף ותיאום ביקור בנכס:

Or Hadar

P.iva 06699340482

© 2026 All Rights Reserved.