Toscana, Cortona

הקיפוד של קורטונה

€ 1.695.000

4חדרי שינה
3חדרי רחצה
397 מ"רשטח כולל
0,2 הקטארקרקע
כןבריכה

תיאור הנכס

הקיפוד של קורטונה – אחוזה יוקרתית בשטח של מעל 360 מ"ר עם מבני עזר רב-תכליתיים, בריכת שחייה ומתחם חצר גנים בשטח של 2800 מ"ר הכולל עצי ברוש, עצי זית וצמחי נוי. ממוקם במיקום נוח ושטוף שמש, הוא מציע פרטיות בלי בידוד, במרחק דקות מהעיר העתיקה המפורסמת קורטונה (Cortona).

הנכס תוארך למאה ה-19, ועבר שיפוץ קפדני בשנת 2011 תוך שימוש בחומרים טיפוסיים ואיכותיים, המשלבים אלגנטיות טובה בטעם עם נוחות מודרנית. הבית החקלאי הראשי צבוע באלגנטיות באדום עתיק, המזכיר את מעונות טוסקנה האציליים, בעוד הפנים כוללות קורות חשופות, רצפות טרקוטה, אח מסורתי, כמו גם גימורים משובחים ופרטים מעוצבים בקפידה.

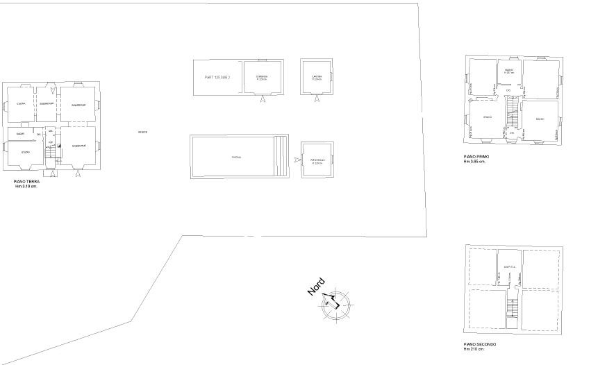
הפריסה משתרעת על שתי קומות בתוספת עליית גג קטנה. בקומה התחתונה יש סלון כפול גדול עם קשתות, פינת אוכל, מטבח מרווח, חדר אמבטיה וחדר עבודה/חדר שינה. מדרגות אבן נוחות ועתיקות מובילות לקומה הראשונה, הכוללת שלושה חדרים: שני חדרי שינה עם חדר אמבטיה אחד וסוויטה ראשית גדולה עם חדר אמבטיה מרווח.

השטח החיצוני המתוחזק בקפידה כולל מתחם חצר גנים בשטח של כ-1,800 מ"ר. בריכת שחייה יפהפייה בגודל 12×5 מטר עם כיסוי אוטומטי מוקפת במבני עזר רב-תכליתיים כולל מוסך, מזווה, מרתף וחדר אחסון/חדר הלבשה.

תנור עצים חיצוני, אזורי אוכל ומנוחה מוארים ומרוהטים ליצירת אווירה קסומה.

נכס מצוין למגורים במשרה מלאה או כבית נופש ליהנות ממנו, או להציע לאורחים שלכם את הקסם של אומבריה (Umbria) וטוסקנה (Tuscany).

תוכניות קומה

Planimetria 1
Planimetria 2

סרטון