Umbria, Panicale

הפוג'יו דגלי אוליבי (Il Poggio degli Ulivi)

€ 1.600.000

3חדרי שינה
1חדרי רחצה
720 מ"רשטח כולל
94,2 הקטארקרקע

תיאור הנכס

נכס השוכן בתוך מטעי זיתים עם נוף עוצר נשימה לאחד הכפרים היפים ביותר באיטליה.


המבנה הראשי של האחוזה משתרע על שטח כולל של כ-300 מ"ר בשלוש קומות. בקומה הראשונה נמצא אזור המגורים הכולל מטבח וסלון, יחד עם מרפסת מקורה של כ-10 מ"ר, בעוד שבקומה השנייה ישנם שלושה חדרי שינה, משרד וחדר אמבטיה, בשטח מגורים כולל של כ-170 מ"ר.
בקומה הקרקעית יש חדרי אחסון וחדר טכני בשטח כולל של 133 מ"ר.
בית החווה שומר על הקסם של בתי הכפר המסורתיים באומבריה (Umbria), תוך שמירה על מאפיינים מבניים מקוריים וגימורים מתקופתם, אם כי הוא דורש עבודות מודרניזציה.


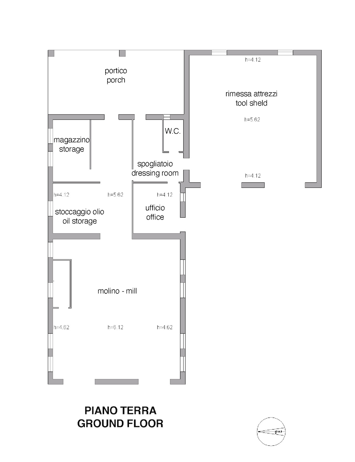
המבנה השני הוא בית הבד לזיתים בשטח של כ-355 מ"ר (עם אפשרות לשינוי ייעוד), המסודר בקומה אחת וכולל מרפסת פנורמית של כ-50 מ"ר.
בפנים, ישנו בית בד זיתים פעיל לחלוטין לחילוץ זיתים בשיטה קרה, יחד עם כל הציוד הנדרש לניהול העסק החקלאי (חברה בעלת הסמכת ICEA – מיזם חקלאי אורגני הפועל על פי תקנים אתיים וסביבתיים מחמירים).


הקרקע, בשטח כולל של כ-95 דונם במיקום גבעי, מורכבת מ:
– 16 דונם של מטעי זיתים עם כ-3,000 עצים
– 24 דונם של קרקע חקלאית
– 0.8 דונם של חורשת אגוזי מלך
– 0.25 דונם של כרם ועוד 0.2 דונם של זכויות
– 54 דונם של חורשת עצים


הנכס ממוקם במרחק של 5 דקות בלבד מעיירה המציעה את כל השירותים.

תוכניות קומה

Planimetria 1
Planimetria 2
Planimetria 3

סרטון