Umbria, Paciano

הפודרה דיי פיני (Il Podere dei Pini)

€ 580.000

3חדרי שינה
3חדרי רחצה
264 מ"רשטח כולל
1,2 הקטארקרקע

תיאור הנכס

"ה'פודרה דיי פיני' הוא מתחם יפהפה עם קומפוזיציה ארכיטקטונית מורכבת, הפרושה על פני 2 קומות ומורכבת כדלקמן:

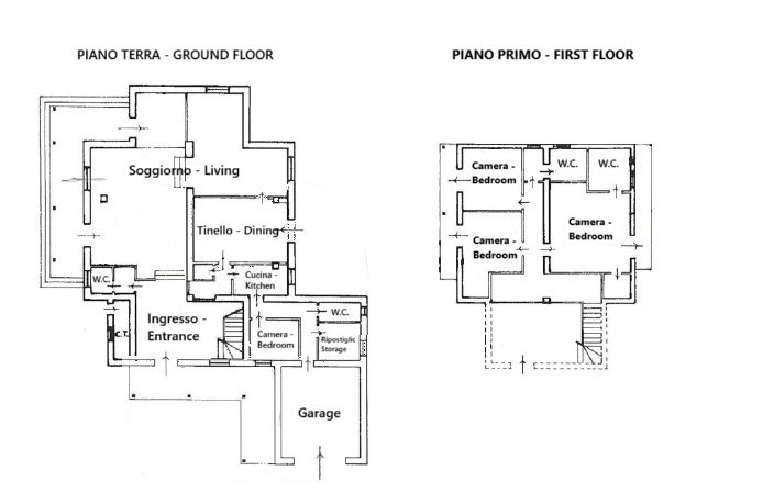
קומה קרקעית (192 מ"ר) – הכניסה הראשית מובילה לאזור כפול גובה, המאופיין במדרגות עץ יפות ואח אבן שלווה; הקומה הקרקעית מאופיינת בחללי מגורים גדולים כגון סלון עם אח, חדר ישיבה אינטימי יותר הממוקם ברמה מעט מוגבהת, פינת עבודה, מטבח מרווח עם אח נוסף, פינת אוכל גדולה עם אח גדול, מסדרונות ושירותים.

כל הקומה הקרקעית מסומנת בפתיחות רחבות אל הגינה החיצונית והפרגולות הממוקמות בצדי הבניין, מה שהופך אזורים אלה לנעימים, מאווררים ומוארים במיוחד. בקומה זו יש גם מוסך נוח של 25 מ"ר עם דלת תקשורת פנימית, חדר טכני של 4 מ"ר ואזורים חיצוניים נוספים המכוסים בפרגולות בשטח כולל של 23 מ"ר.

קומה ראשונה (97 מ"ר) – הגישה לקומה העליונה היא באמצעות המדרגות היפות הממוקמות בכניסה לחווה, המובילות למרפסת המשקיפה על הכניסה למטה ואזור השינה, שם נמצאת סוויטת הורים גדולה עם חדר רחצה צמוד וחדר ארונות, 2 חדרי שינה נוספים, חדר רחצה נוסף ו-2 מרפסות (15 מ"ר) הממוקמות משני צידי המבנה עם נוף לפארק הסובב ולמבטים נופיים של אזור אגם טרסימנו.

הנכס משלים בניין צמוד בשטח של כ-50 מ"ר, שהוסב ממרתף, הכולל חללים המיועדים למרתף, אחסון כלים ובית לימון באזור מרפסת.

הפארק הסובב, בשטח כולל של 12,300 מ"ר, מאופיין בכניסה הרכב הראשית לנכס וכניסה נוספת הממוקמת באזור גבוה יותר. הפארק מועשר בעצים גבוהים כגון אורני פיין, עצי ארז לבנון, אשוח, כמו גם צמחים ארומטיים ודקורטיביים הממוקמים לאורך השבילים השונים, וכולל 50 עצי זית."

תוכניות קומה

Planimetria 1
Planimetria 2
Planimetria 3

אור הדר, מתווכת נדל"ן מורשית באיטליה

orhadar@homeitaly.co.il

אור הדר היא מתווכת נדל"ן מורשית המתמחה בליווי ישראלים ברכישת בתי נופש באיטליה. כילידת ישראל המתגוררת בפירנצה משנת 2015, אור מביאה עמה את היתרון הייחודי של הבנת שתי התרבויות והשפות. מומחיותה מתמקדת בהתאמת בתי נופש המשלבים את הקסם האיטלקי עם הצרכים הספציפיים של הלקוח הישראלי. כבעלת רישיון תיווך איטלקי, אור מלווה את לקוחותיה בכל שלבי הרכישה, החל מאיתור הנכס המושלם ועד להשלמת העסקה, תוך הקפדה על מקצועיות, שקיפות ותשומת לב אישית לכל פרט.

מידע נוסף ותיאום ביקור בנכס:

Or Hadar

P.iva 06699340482

© 2026 All Rights Reserved.