Umbria, Città della Pieve

גן הרגיעה

€ 1.580.000

6חדרי שינה
5חדרי רחצה
680 מ"רשטח כולל
0,5 הקטארקרקע
כןבריכה

תיאור הנכס

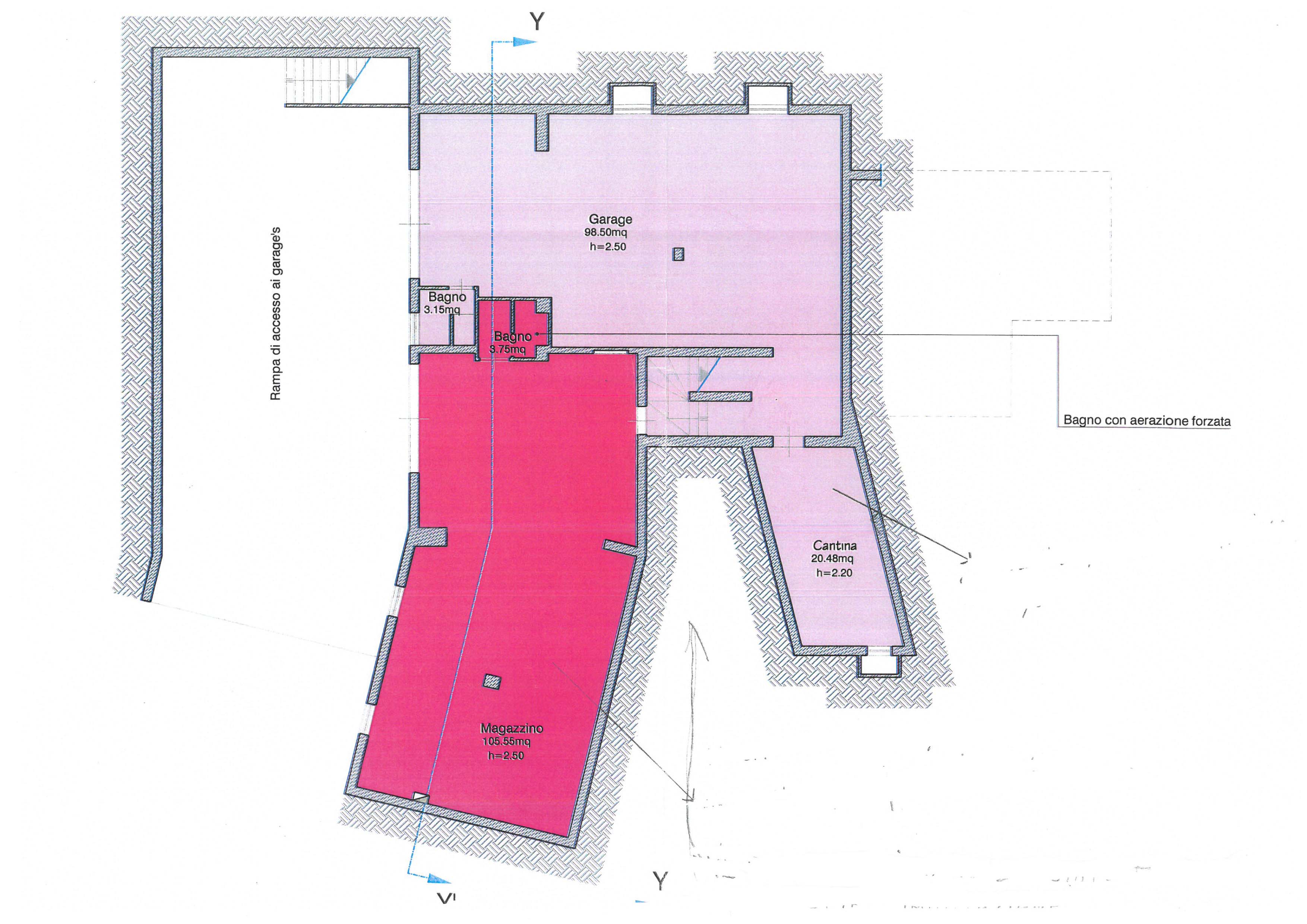
נכס מופלא זה נבנה מחדש מחורבה בשלהי שנות ה-80, תוך שמירה על מאפייני בית חווה מקומי טיפוסי. מאוחר יותר, בוצעו מאמצי שיקום ושיפורים נוספים, האחרונים בשנת 2022, שכללו גם את שיפוץ בריכת השחייה והגן. בית החווה מורכב מ-4 דירות, לכל אחת כניסה פרטית משלה. הדירה הראשונה בקומת הקרקע עם מספר כניסות מציעה חדר אוכל, מטבח, 2 חדרי שינה וחדר רחצה אחד. הדירה השנייה – גם היא עם כניסה בקומת הקרקע – מורכבת מחדר שינה אחד, מטבחון עם סלון, וחדר רחצה אחד. הדירה השלישית עם כניסה בקומת הקרקע מורכבת מחדר שינה אחד, מטבחון עם סלון, וחדר רחצה אחד. הדירה הרביעית והאחרונה ממוקמת במפלס השני ונגישה באמצעות גרם מדרגות המוביל למרפסת קטנה שממנה נכנסים לסלון עם מטבחון ולאחר מכן ממשיכים ל-2 חדרי שינה וחדר רחצה אחד. במפלס המרתף ישנם שני חדרים גדולים, מחסן/מרתף. הנכס מוקף בגן יפהפה ומטופח הכולל בריכת אינסוף מרהיבה בגודל 10 X 4 מטר ששופצה במלואה בשנת 2022, אזור חדר כושר, שני אזורי מנוחה וג'קוזי מחומם. שני אזורי חניה משלימים את הנכס.

תוכניות קומה

Planimetria 1
Planimetria 2
Planimetria 3