Umbria, Passignano sul Trasimeno

הבורגו דלה רוזה (Il Borgo delle Rose)

€ 1.490.000

14חדרי שינה
16חדרי רחצה
1.597 מ"רשטח כולל
6,8 הקטארקרקע

תיאור הנכס

כל הנכס משתרע על כ-1,000 מ"ר, שוחזר בצורה מדהימה בשנת 2010. לחווה הייחודית הזו יש 3 קומות. בקומה התחתונה תמצאו מדרגות עתיקות מדהימות המובילות לקומה השנייה, הכוללת מרפסת מקסימה עם עמודי אבן, מטבח עם תנור עצים, רצפות טרקוטה יפות ואריחי חצץ יחידים, סלון הנתפס על ידי אח תרמו-טרוורטין מעולה, חדר שינה וחדר אמבטיה. מדרגות חיצוניות מספקות גישה לקומה השנייה, הכוללת סלון וארבעה חדרי שינה עם חדרי רחצה צמודים. הקומה השלישית מכילה חמישה חדרי שינה עם חדרי רחצה צמודים. מבנה לייבוש הטבק לשעבר מתהדר בסלון עם אח עצים יפהפה, פינת אוכל, מטבח מקצועי, אזור מגורים נוסף עם חלונות ודלתות צרפתיות הנפתחות לחצר האחורית, חדר שינה, מטבח נוסף, חדר מבוא וחדר אמבטיה, סלון ומסדרון עם גישה ישירה לכנסייה המבוטלת המשוחזרת להפליא, שיכולה לשמש כחדר רב תכליתי. יש גם מזווה לשעבר, חדר מבוא, שירותים ודוד. בנוסף, יש בניין צמוד המחולק לחמישה מחסנים חיצוניים, לצד בית הארחה עם סלון/מטבח, שני חדרי שינה וחדר אמבטיה. המיקום המדהים והפנורמה הקסומה מציעים את ההזדמנות המושלמת לבנות בריכת שחייה יפהפייה. הקרקע היא בעיקר אדמת חקלאות, המשתרעת על כ-5.5 דונם, יחד עם כ-1 דונם של אדמת מרעה.

מאפיינים פנימיים

  • חדר אמבטיה עם אמבטיה
  • כניסות מרובות
  • חדר אמבטיה עם מקלחת
  • רצפות טרקוטה
  • רצפות גרניט

מאפיינים חיצוניים

  • נוף לגן
  • נוף לפארק
  • נוף פתוח
  • פנורמי

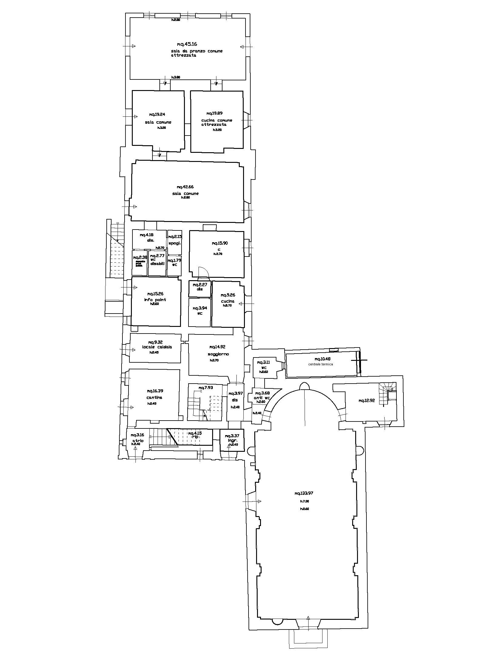
תוכניות קומה

Planimetria 1
Planimetria 2
Planimetria 3

מרחקים

  • סופרמרקט 5
  • בית חולים 25
  • תחנה 10
  • Theatres/קולנוע 10
  • בנקים 5
  • "יציאת כביש מהיר 40
  • בתי ספר 5
  • חנויות 5
  • אגם 15
  • ערים/עיירות/כפרים 5
  • שדה תעופה 50

אור הדר, מתווכת נדל"ן מורשית באיטליה

orhadar@homeitaly.co.il

אור הדר היא מתווכת נדל"ן מורשית המתמחה בליווי ישראלים ברכישת בתי נופש באיטליה. כילידת ישראל המתגוררת בפירנצה משנת 2015, אור מביאה עמה את היתרון הייחודי של הבנת שתי התרבויות והשפות. מומחיותה מתמקדת בהתאמת בתי נופש המשלבים את הקסם האיטלקי עם הצרכים הספציפיים של הלקוח הישראלי. כבעלת רישיון תיווך איטלקי, אור מלווה את לקוחותיה בכל שלבי הרכישה, החל מאיתור הנכס המושלם ועד להשלמת העסקה, תוך הקפדה על מקצועיות, שקיפות ותשומת לב אישית לכל פרט.

מידע נוסף ותיאום ביקור בנכס:

Or Hadar

P.iva 06699340482

© 2026 All Rights Reserved.