Toscana, Cortona

הצומת (il Bivio)

€ 1.200.000

7חדרי שינה
6חדרי רחצה
926 מ"רשטח כולל
0,2 הקטארקרקע

תיאור הנכס

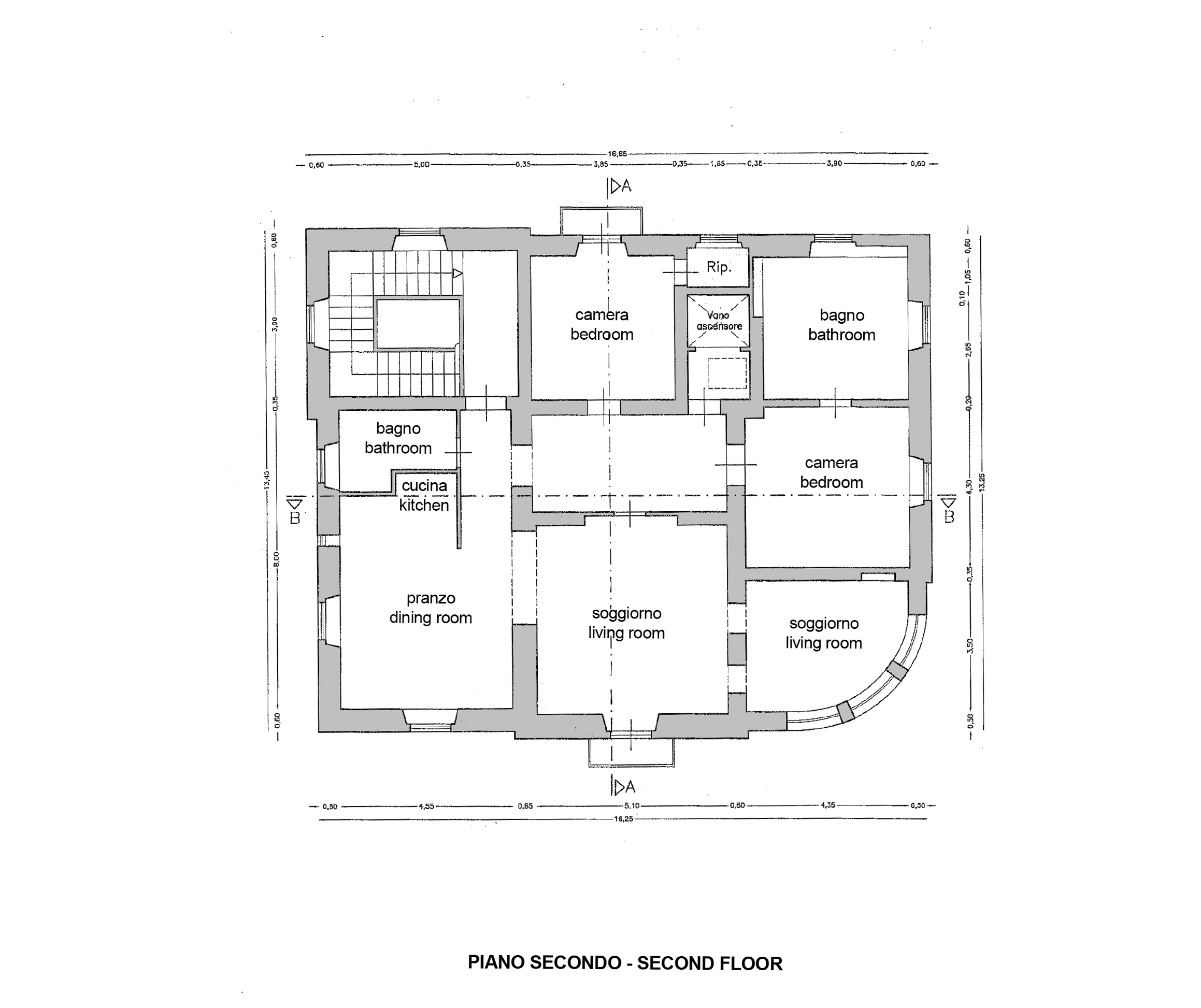
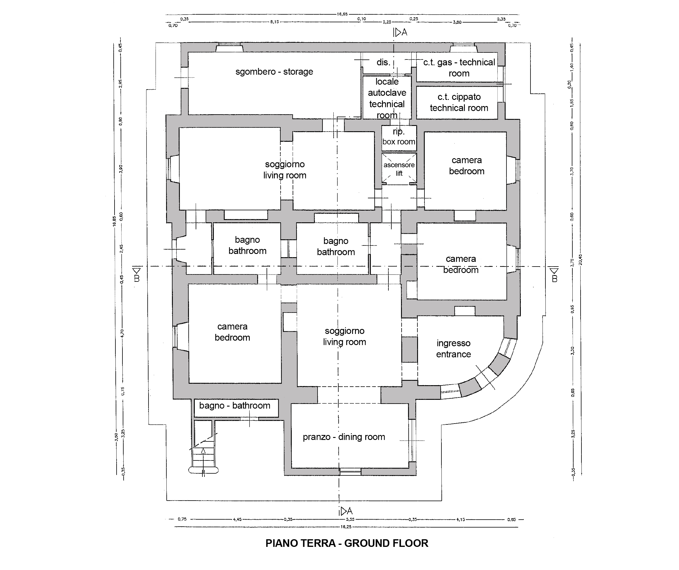
וילה אר-נובו מקסימה זו ממוקמת במיקום אסטרטגי במוניציפליות של קורטונה (Cortona). היא בנויה על שלוש קומות בשטח כולל של 690 מ"ר ומחולקת לשלוש יחידות דיור עצמאיות. הכניסה הראשית היא בקומה הראשונה, אליה מגיעים דרך מדרגות חיצוניות גדולות מאבן. בקומה זו נמצאים המבואה המובילה אל חדר הכניסה, הסלון עם מרפסת, ומטבח פינתי המואר על ידי חלונות גדולים, שלושה חדרי שינה, אחד עם חדר רחצה צמוד, חדר רחצה נוסף וארון. לקומה השנייה מגיעים דרך מדרגות פנימיות או מעלית, ובקומה זו תמצאו סלון גדול, שני חדרי שינה, שני חדרי רחצה וחדר אוכל. לבסוף, בקומה הקרקעית של הוילה תמצאו את יחידת הדיור השלישית הכוללת חדר כניסה, שלושה חדרי שינה, סלון גדול, שני חדרי רחצה וחדר אוכל נוסף. חדר טכני/כביסה בקומה הקרקעית בשטח של כ-50 מ"ר. בחדר האחסון יש חדר שירות המוביל לגג עם מרפסת בשטח של כ-20 מ"ר. הגינה של הוילה מלאה בעצים גבוהים ומשתרעת על שטח של 2,200 מ"ר ויש לה שתי כניסות. לנכס צמוד מוסך מעשי בשטח של כ-50 מ"ר.

תוכניות קומה

Planimetria 1
Planimetria 2
Planimetria 3
Planimetria 4
Planimetria 5