Umbria, Spoleto

תכשיט על העמק (Gioiello sulla Valle)

€ 1.300.000

5חדרי שינה
5חדרי רחצה
530 מ"רשטח כולל
3,5 הקטארקרקע
כןבריכה

תיאור הנכס

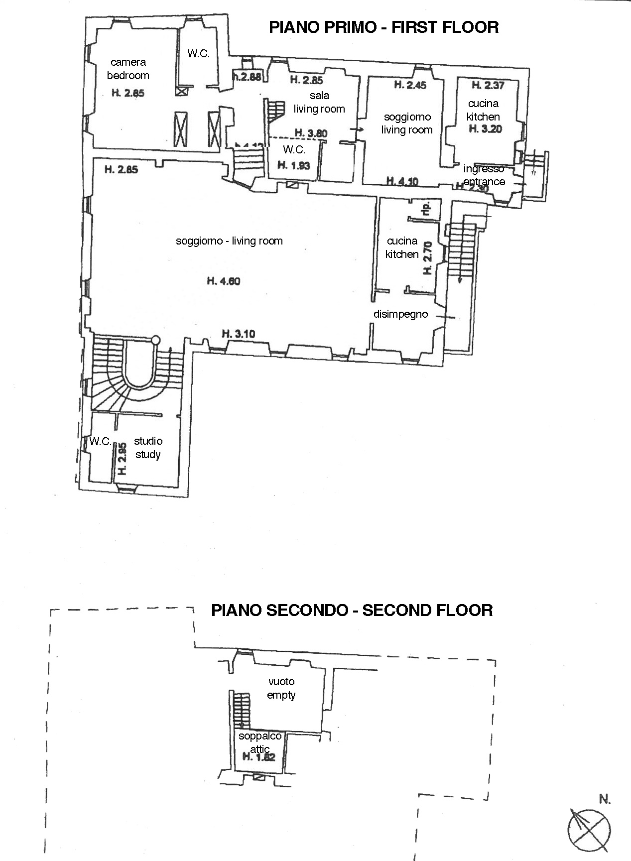
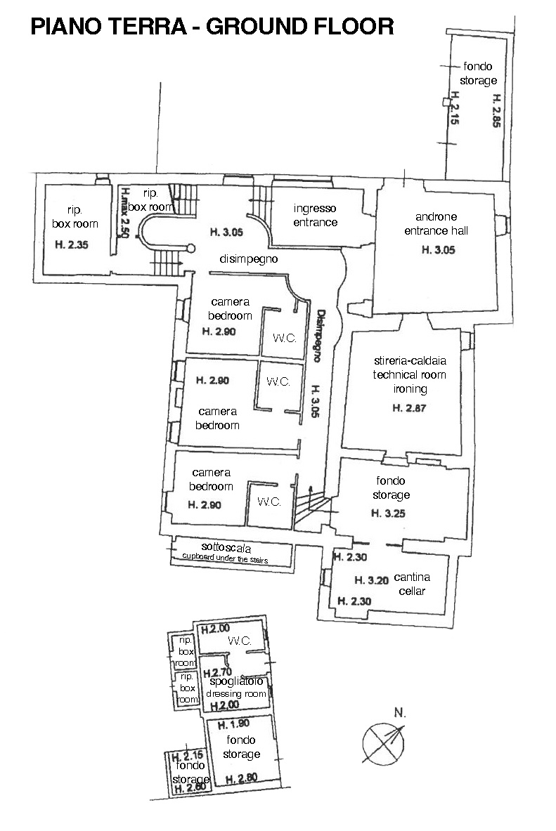
תכשיט על העמק (Gioiello sulla Valle) היא וילה יפהפייה הממוקמת 8 ק"מ צפונית לספולטו (Spoleto) עם שטח ברוטו של כ-500 מ"ר המוקפת בשטח של 3.7 דונם מגודר לחלוטין, חלקו מורכב מעצי זית פוריים, עצי פרי ואלונים בני מאות שנים. הנכס שימש במקור כמנזר ולאחר מכן הפך לבית בד זיתים עד 1958. בשנת 1978 שוחזר הנכס בקפידה על ידי הבעלים הנוכחיים. בקומה התחתונה הכניסה מובילה לחדר. באותה קומה נמצאים גם מרתף, שני ארונות, חדר כביסה ושלושה חדרי שינה זוגיים, כל אחד עם חדר רחצה צמוד. מדרגות גדולות מובילות לקומה הראשונה, שם אתם מתקבלים בסלון מפואר עם אריחי טרקוטה מקוריים וקורות גג אלון. יש גם חדר עבודה עם חדר רחצה ומטבח עם מזווה. החצי השני של הקומה הזו הפך לדירה עצמאית עם גישה מהגינה המורכבת ממטבח, סלון וחדר שינה עם חדר רחצה פרטי. הנכס מוקף בגינה מפוארת המאכלסת בריכת שחייה פנורמית עם אזור שיזוף, המצוידת בחדרי הלבשה ושירותים. תכשיט על העמק (Gioiello sulla Valle) הוא נכס פונקציונלי המסוגל לשמר יופי עתיק.

תוכניות קומה

Planimetria 1
Planimetria 2
Planimetria 3

אור הדר, מתווכת נדל"ן מורשית באיטליה

orhadar@homeitaly.co.il

אור הדר היא מתווכת נדל"ן מורשית המתמחה בליווי ישראלים ברכישת בתי נופש באיטליה. כילידת ישראל המתגוררת בפירנצה משנת 2015, אור מביאה עמה את היתרון הייחודי של הבנת שתי התרבויות והשפות. מומחיותה מתמקדת בהתאמת בתי נופש המשלבים את הקסם האיטלקי עם הצרכים הספציפיים של הלקוח הישראלי. כבעלת רישיון תיווך איטלקי, אור מלווה את לקוחותיה בכל שלבי הרכישה, החל מאיתור הנכס המושלם ועד להשלמת העסקה, תוך הקפדה על מקצועיות, שקיפות ותשומת לב אישית לכל פרט.

מידע נוסף ותיאום ביקור בנכס:

Or Hadar

P.iva 06699340482

© 2026 All Rights Reserved.