Umbria, Castiglione del Lago

בית עכשווי

€ 690.000

4חדרי שינה
3חדרי רחצה
270 מ"רשטח כולל
0,6 הקטארקרקע

תיאור הנכס

וילה חדשה זו בולטת בארכיטקטורה המודרנית שלה ובשפע האור הטבעי בכל חלליה. ממוקמת בהקשר פרטי, עם גינה גדולה בשטח של כ-6,500 מ"ר, היא מציעה סביבה אקסקלוסיבית שבה פרטיות ושלווה משתלבות בצורה חלקה עם קרבה לשירותים ולאגם טראזימנו (Lake Trasimeno). המבנה, המסודר על קומה אחת בשטח של 270 מ"ר, משתלב בהרמוניה עם הטבע שמסביב באמצעות חלונות מזוגגים רחבי ידיים המכניסים אור טבעי, ויוצרים חללי מגורים מרווחים ופתוחים.

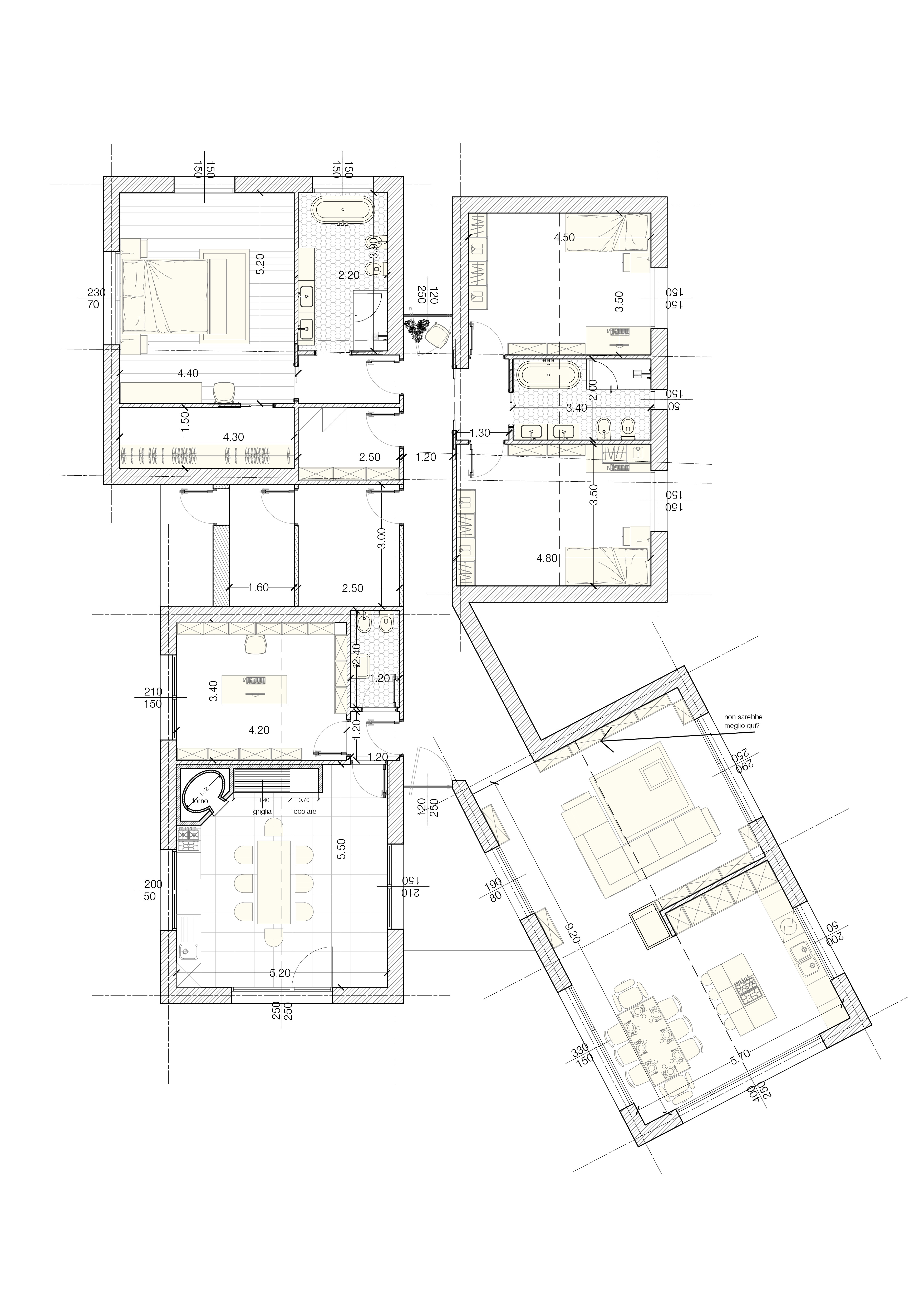
בחוץ, הקווים המינימליסטיים והמאופקים מדגישים את הסגנון העכשווי שלה, בעוד שבפנים הדגש הוא על פונקציונליות, זרימת חלל ויעילות אנרגטית, עם מערכות חדישות לחימום, קירור, טיהור אוויר ואוטומציה ביתית. הפריסה הפנימית כוללת סלון מואר עם אח, שני מטבחים, שלושה חדרי שינה – אחד מהם עם חדר רחצה צמוד, אמבט ג'קוזי וחדר ארונות – חדר שינה רביעי גדול לאורחים (המשמש כיום כחדר עבודה), שני חדרי רחצה נוספים, חדר טכני ושני אזורי אחסון.

הגינה השטוחה לחלוטין מרחיבה את האפשרויות למגורים בחוץ ברוגע מוחלט, ומשופרת על ידי יער של עצי אלון גדולים, המספק מקלט מושלם בחודשים החמים יותר.

עם פוטנציאל לבניית בריכת שחייה ומבנה עזר בשטח של 30 מ"ר, בית עכשווי מוכן להציע אורח חיים נוח המתמקד ברווחה, עם תשומת לב רבה לקיימות אנרגטית ויעילות עלויות.

הנכס נמכר מרוהט במלואו, כולל מטבחים איכותיים.

תוכניות קומה

Planimetria 1

אור הדר, מתווכת נדל"ן מורשית באיטליה

orhadar@homeitaly.co.il

אור הדר היא מתווכת נדל"ן מורשית המתמחה בליווי ישראלים ברכישת בתי נופש באיטליה. כילידת ישראל המתגוררת בפירנצה משנת 2015, אור מביאה עמה את היתרון הייחודי של הבנת שתי התרבויות והשפות. מומחיותה מתמקדת בהתאמת בתי נופש המשלבים את הקסם האיטלקי עם הצרכים הספציפיים של הלקוח הישראלי. כבעלת רישיון תיווך איטלקי, אור מלווה את לקוחותיה בכל שלבי הרכישה, החל מאיתור הנכס המושלם ועד להשלמת העסקה, תוך הקפדה על מקצועיות, שקיפות ותשומת לב אישית לכל פרט.

מידע נוסף ותיאום ביקור בנכס:

Or Hadar

P.iva 06699340482

© 2026 All Rights Reserved.