Toscana, Foiano della Chiana

קסאלה רנאיה

€ 1.300.000

5חדרי שינה
5חדרי רחצה
488 מ"רשטח כולל
0,2 הקטארקרקע
כןבריכה

תיאור הנכס

נכס מעודן זה ממוקם על רקע הקסום של עמק קיאנה, ומציע שילוב מושלם של אלגנטיות כפרית ונוחות מודרנית. החווה נבנתה בשנת 2006 ושוחזרה בקפידה, ומשתרעת על שטח של כ-201 מ"ר בשתי קומות, כאשר הכניסה הראשית ממוקמת בנוחות בקומת הקרקע. התכנון המוקפד יוצר חללים פנימיים בהירים וזורמים, שבהם גימורים איכותיים יוצרים הרמוניה מושלמת בין מסורת לסגנון עכשווי. קורות עץ חשופות, קירות אבן וריצוף טרקוטה מעניקים לבית אווירה חמה ואותנטית.
בקומת הקרקע, חדר כניסה מרווח מוביל לסלון נעים עם אח, מטבח מאובזר במלואו עם גישה לפרגולה מקורה, שירותי אורחים וחדר שינה עם חדר רחצה צמוד וחדר ארונות.
בקומה העליונה, מדרגות טרוורטין אלגנטיות מובילות לשני חדרי שינה נוספים, פינת עבודה וחדר רחצה הכולל מקלחת וג'קוזי, אידיאלי לרגעים של רגיעה.
מרתף (כ-171 מ"ר) נגיש הן מבפנים והן מבחוץ וכולל מטבח בסגנון כפרי עם אח, חדר רחצה, מוסך, יקב וחדר טכני לבריכה.
מרחק כמה צעדים מהבית הראשי ניצב בית אורחים נפרד בשטח של כ-63 מ"ר, הכולל מטבח, שני חדרי שינה וחדר רחצה, אידיאלי לאירוח אורחים או לשימוש כהשכרה לחופשה.
הגינה הנופית, מגודרת במלואה ומטופחת להפליא, משתרעת על שטח של כ-2,000 מ"ר ומציעה אווירה של שלווה ופרטיות. בריכת אינסוף מלח מדהימה (4.5 מ' x 11 מ') ניצבת בלב החלל החיצוני, יחד עם גינת ירק קטנה לאוהבי הטבע והקיימות.
נכס זה מייצג פתרון מגורים מתוחכם ופונקציונלי, אידיאלי לכל מי שמחפש נסיגה יוקרתית השקועה בטבע, תוך הנאה מכל הנוחות של החיים המודרניים והיופי הנצחי של הכפר הטוסקני. עמק קיאנה (Val di Chiana) טוסקנה (Tuscany)

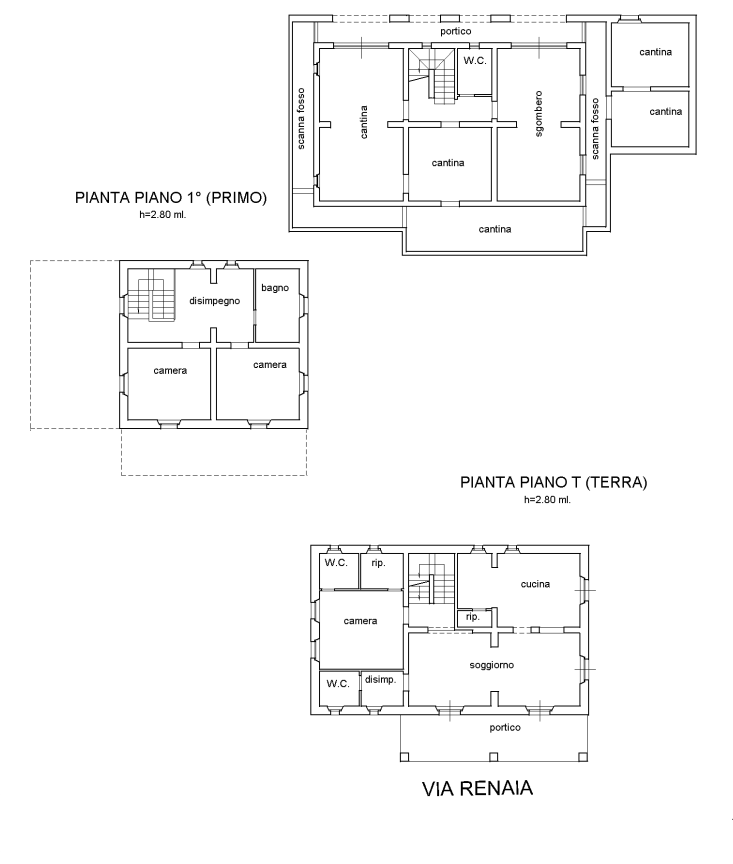
תוכניות קומה

Planimetria 1
Planimetria 2
Planimetria 3