Toscana, San Gimignano

קסאלה פוג'יאנו (Casale Puggiano)

€ 500.000

4חדרי שינה
2חדרי רחצה
401 מ"רשטח כולל
2,4 הקטארקרקע

תיאור הנכס

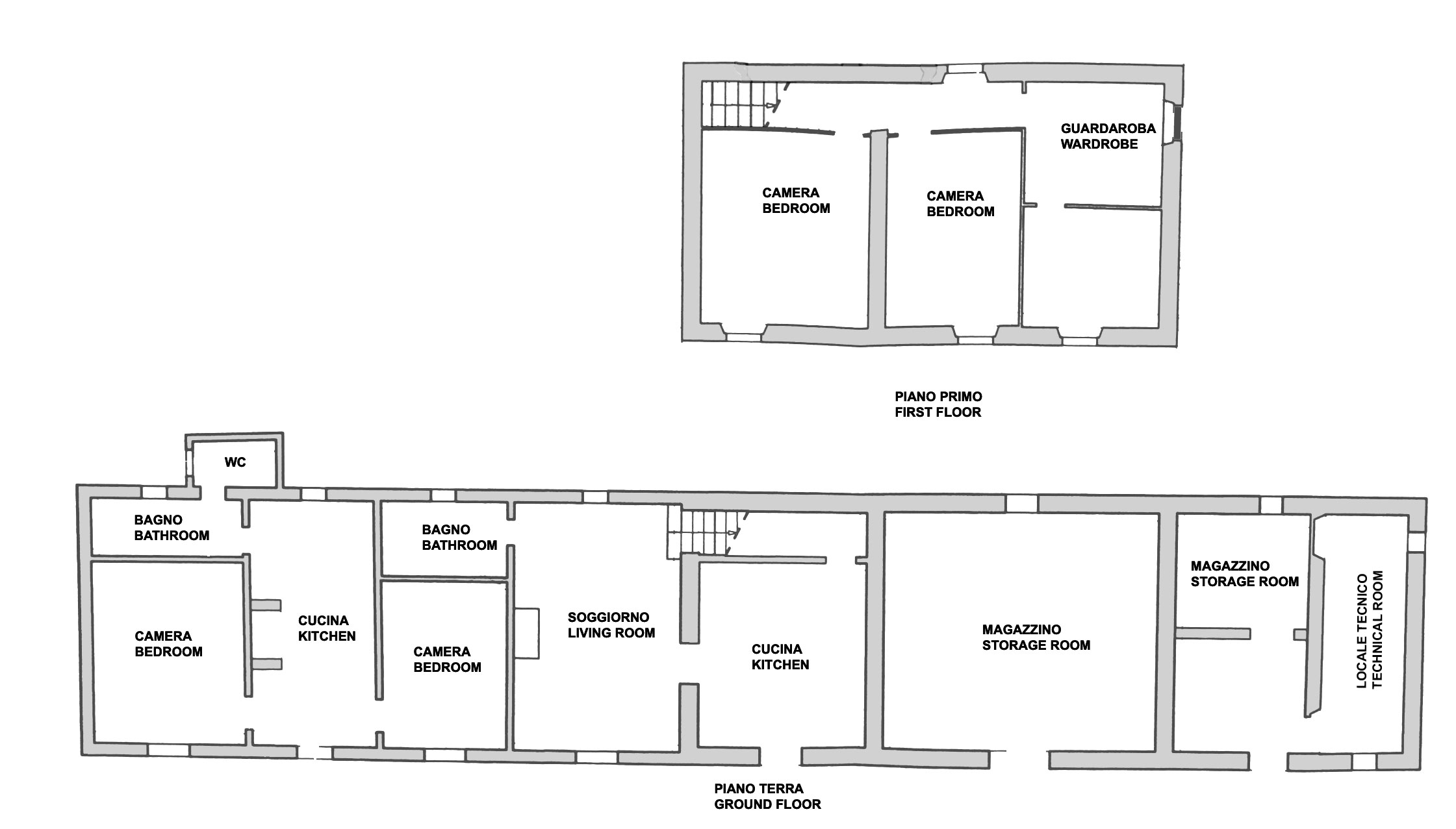
קסאלה פוג'יאנו ממוקמת בכפר קטן ומורכבת מחלק מגורים של הנכס עם שני חדרי שינה, חדר אמבטיה, סלון ומטבח הכולל אח עתיקה. מחובר לכך דירה בשתי קומות המשמשת כיום לאגריטוריזם, בקומת הקרקע יש מטבח עם חדר אוכל גדול עם ארון, סלון עם אח וחדר אמבטיה, בקומה המזנינה שני חדרי שינה וארון. צמוד אליו, בקיר סמוך, נמצא חדר שמן ואזור טכני. במרחק כמה צעדים, בחלל פתוח מעל, נמצאים חורבות עתיקות מתקופות קדומות שניתן לשחזר כבית. הנכס כולל כ-1.5 דונם של קרקע. קיימת אפשרות להרחיב את הנכס החקלאי על ידי רכישת 66 דונם נוספים של קרקע כדלקמן: מטעי זיתים בשטח של כ-800 עצי זית בשטח של כ-2.35 דונם; אדמה חקלאית בשטח של כ-20 דונם; כ-0.95 דונם של אדמה חקלאית עם עצים; מרעה שיחי בשטח של כ-2.86 דונם; יער גזם בשטח של כ-31.61 דונם; יער מעורב בשטח של כ-10.11 דונם (בסך 300,000 אירו).

מאפיינים פנימיים

  • חדר אמבטיה עם מקלחת
  • כניסות מרובות
  • ריצוף קרמיקה

מאפיינים חיצוניים

  • נוף הרים
  • נוף פתוח
  • נוף פנורמי

תוכניות קומה

Planimetria 1

מרחקים

  • בית חולים 30
  • תחנה 15
  • סופרמרקט 8
  • Theatres/קולנוע 8
  • ערים/עיירות/כפרים 8
  • בנקים 8
  • "יציאת כביש מהיר 15
  • בתי ספר 8
  • שדה תעופה 70
  • חנויות 8
  • אגם 100
  • ים 80
  • "מתקני סקי 100