Umbria, Orvieto

קסאל פוג'יופיוריטו (Casale Poggiofiorito)

€ 470.000

3חדרי שינה
2חדרי רחצה
949 מ"רשטח כולל
1,7 הקטארקרקע

תיאור הנכס

קסאל פוג'יופיוריטו מגולם את מהות החיים הכפריים והסגנון. מבנה אבן חשוף יפהפה הממוקם במיקום מוגבה, אליו מגיעים דרך שדרת עצים. המבנה בנוי על שתי קומות, ומוקף בשטח של כ-2 דונם. הבניין הראשי, בשטח של כ-344 מ"ר, כולל חדר כניסה מרווח, סלון/פינת אוכל גדולה עם אח דו-צדדי, חדר אמבטיה עם מקלחת, ומטבח נדיב הכולל גם אח עצים. הקומה העליונה מגיעה אליה באמצעות מדרגות עץ; כאן יש מרפסת המובילה לחדר שינה ראשון וחדר אמבטיה עם אמבטיה, ואחריו מסדרון נוסף המספק גישה לשני חדרי שינה זוגיים גדולים, חדר שינה נוסף, וחדר עבודה המחובר אליו. ישנם גם חדרי עליית גג בחלל הלופט. משלימים את הנכס מוסך, חדר אחסון גדול, אסם לשיפוץ, ומבנה אחסון נוסף עם מחסן עצים ותנור.

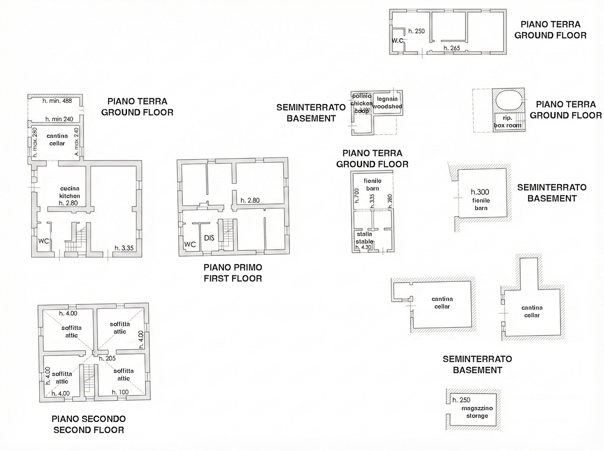
תוכניות קומה

Planimetria 1
Planimetria 2
Planimetria 3