Umbria, Orvieto

קסאלה מוראיולו (Casale Moraiolo)

€ 1.550.000

3חדרי שינה
3חדרי רחצה
863 מ"רשטח כולל
8,8 הקטארקרקע

תיאור הנכס

ניתן ליהנות מהנוף החלומי המבוקש ביותר של צוק אורבייטו מבית החווה העתיק הזה, הממוקם במיקום ייחודי באמת! קסאלה מוראיולו מוקפת בגינה שטוחה ומושלמת על ידי כ-7 דונם של אדמה, כולל שטחי חקלאות ומטעי זיתים פעילים. הוא בנוי על שתי קומות, המחוברות במדרגות פנימיות רחבות העשויות מאבן עתיקה.

בקומת הקרקע יש פינת מגורים ופינת אוכל יפהפייה המשקיפה על הגינה, המחוברת דרך מסדרון לשירותי אורחים, חדר אחסון ולבסוף למטבח הגדול עם גימור אריחי קרמיקה. המטבח מחובר גם לפינת מגורים/אוכל נוספת, הכוללת אח נעים, שאליה ניתן להגיע ישירות מהכניסה.

בעלייה במדרגות, מצד אחד יש את חדר השינה הראשון, ואחריו חדר רחצה עם מקלחת וחדר שינה נוסף, הכולל מסדרון המשמש כמשרד, המוביל לחדר האחסון.

בצד השני של המדרגות נמצא הסוויטה, המורכבת מחדר כניסה, חדר רחצה עם אמבטיה, חדר הלבשה וחדר שינה ראשי. מבחוץ יש מוסך מרווח ושני מבנים לשיפוץ. מבנה נוסף ממוקם מעבר לאדמה הגדולה הסובבת ושוכן במיקום פנורמי במיוחד. קסאלה מוראיולו מציעה נופים ייחודיים ומבוקשים מאוד תוך מתן הזדמנויות רבות להתאמה אישית.

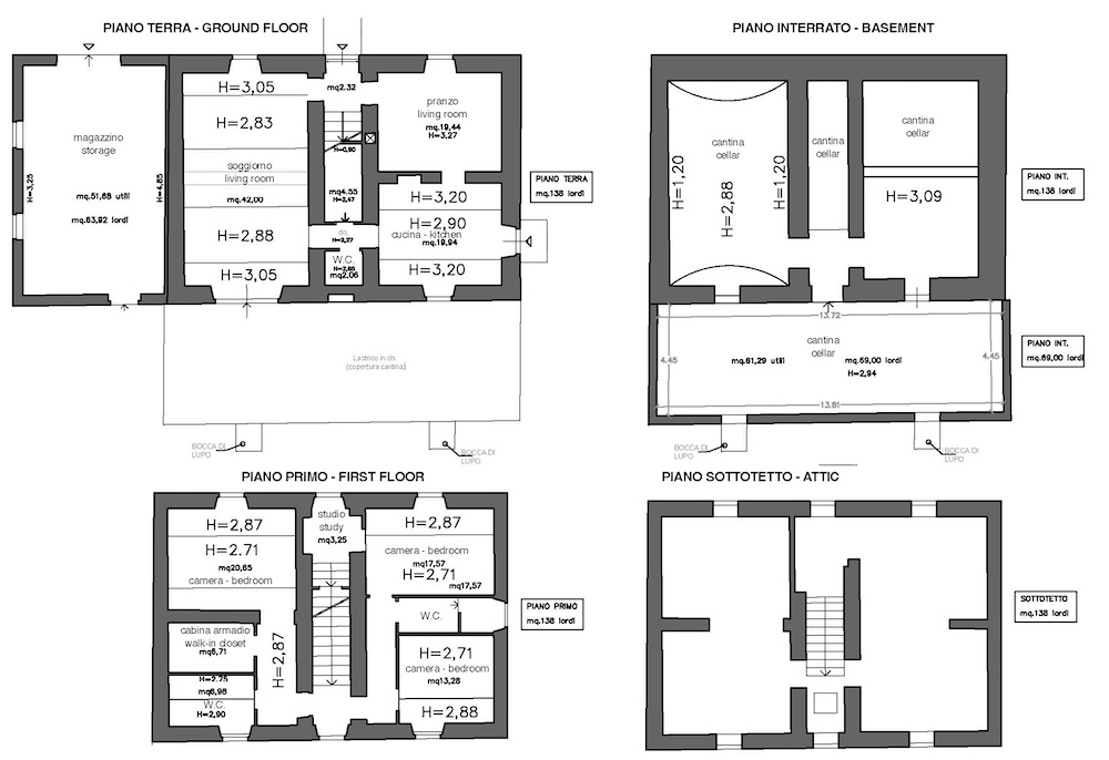
תוכניות קומה

Planimetria 1
Planimetria 2