Toscana, Chiusi

קסאלה מרגריטה

€ 990.000

7חדרי שינה
5חדרי רחצה
1.272 מ"רשטח כולל
0,9 הקטארקרקע

תיאור הנכס

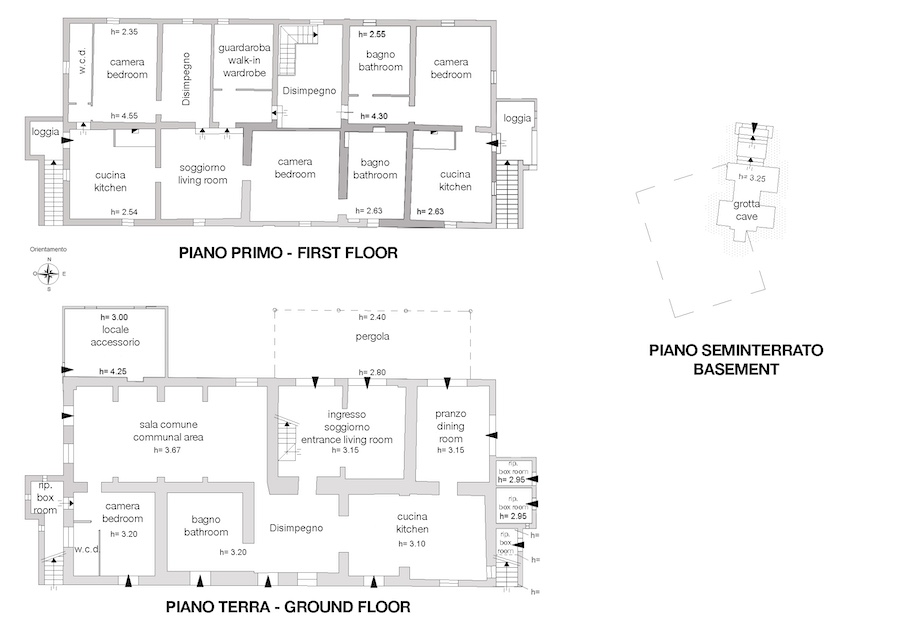
סימפוניה אמיתית של צבעים, חומרים וטבע השולטת בקסאלה מרגריטה, נכס קסום הממוקם במיקום היסטורי וטבעי יפהפה בתוך המועצה המקומית של קיוזי. בית האחוזה הגדול משתרע על שטח כולל של כ-700 מ"ר המסודר כדלקמן: בקומת הקרקע, אליה ניגשים משני צדדים דרך פרגולות יפות המכוסות בגלדיולה, מקבלים את פניכם כניסה מפוארת המובילה לאזור המגורים הגדול, המורכב ממטבח טוסקני גדול, חדר אוכל, סלון ואולם גדול המאופיין בתקרות מקומרות מפוארות. באותה קומה נמצא חדר אמבטיה גדול וחדר שינה לאורחים עם חדר רחצה צמוד. הקומה הראשונה, אליה ניגשים דרך מדרגות אלגנטיות הממוקמות באזור המגורים, כוללת ארבע חדרי שינה, שלושה חדרי רחצה, שני מסדרונות, חדר שמלות, סלון ומטבח. המבנה הצמוד, המשתרע על 2 קומות בשטח של כ-200 מ"ר, זקוק לעבודות גימור, במיוחד בפנים. מבני המשק החקלאיים לשיפוץ מכסים שטח של כ-370 מ"ר. הנכס מוקף בגינה בשטח של כ-9,300 מ"ר, מטופחת במיוחד הכוללת פינות שונות ומעוררות השראה, עם צמחים צבעוניים ופורחים בהם תוכלו לבלות רגעים ייחודיים בחברת המשפחה והחברים. הנכס כולל כ-200 עצי זית לייצור שמן.
קיוזי (Chiusi)

תוכניות קומה

Planimetria 1

סרטון

אור הדר, מתווכת נדל"ן מורשית באיטליה

orhadar@homeitaly.co.il

אור הדר היא מתווכת נדל"ן מורשית המתמחה בליווי ישראלים ברכישת בתי נופש באיטליה. כילידת ישראל המתגוררת בפירנצה משנת 2015, אור מביאה עמה את היתרון הייחודי של הבנת שתי התרבויות והשפות. מומחיותה מתמקדת בהתאמת בתי נופש המשלבים את הקסם האיטלקי עם הצרכים הספציפיים של הלקוח הישראלי. כבעלת רישיון תיווך איטלקי, אור מלווה את לקוחותיה בכל שלבי הרכישה, החל מאיתור הנכס המושלם ועד להשלמת העסקה, תוך הקפדה על מקצועיות, שקיפות ותשומת לב אישית לכל פרט.

מידע נוסף ותיאום ביקור בנכס:

Or Hadar

P.iva 06699340482

© 2026 All Rights Reserved.