Umbria, Orvieto

קזאלה לה רנרה (Casale La Renara)

€ 1.900.000

7חדרי שינה
7חדרי רחצה
628 מ"רשטח כולל
11,3 הקטארקרקע
כןבריכה

תיאור הנכס

קזאלה לה רנרה היא קסם אמיתי שצריך לחוות! היא נהנית ממיקום פרטי ופנורמי, תוך שמירה על קרבה לשירותים חיוניים. אל הנכס מגיעים דרך קטע קצר של דרך חצץ לבנה, המטביע אתכם מיד בכפר האומברי.

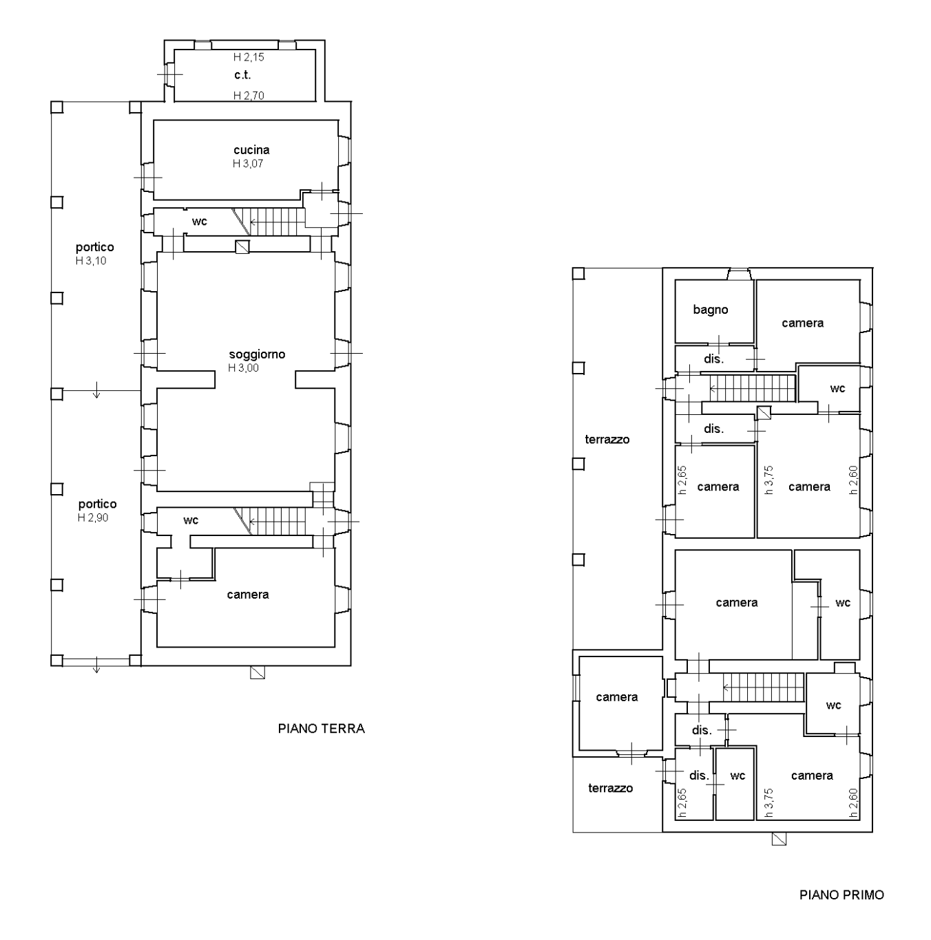
בית החווה הראשי, בשטח של כ-350 מ"ר של שטח שימושי, בנוי בשתי קומות ומסודר כדלקמן: בקומת הקרקע יש סלון מרווח עם פינת אוכל, מטבח, חדר טכני, חדר שינה אחד ושני חדרי אמבטיה. גישה לקומה הראשונה מסופקת על ידי שני גרמי מדרגות, כל אחד משרת אזור שינה אחר. בסך הכל, ישנם שישה חדרי שינה, חמישה חדרי אמבטיה ושתי מרפסות פנורמיות גדולות. הנכס משלים על ידי מבנה צדדי עם מערה, מבנה צדדי שני המשמש כחדר אחסון, בריכת שחייה בגודל 12×5 מטרים, וכ-10 דונם של קרקע חקלאית.

הפנים מאופיינים בתכונות מסורתיות, כגון התקרות המקומרות היפות וקשתות הטרקוטה בקומת הקרקע, בשילוב עם שיפוץ מודרני ששיפר את הקסם של לה רנרה. הפארק החיצוני מועשר בעצים גבוהים ובאזורים מוצלים, בנופים מעוררי השראה ובמרחבים רב-תכליתיים האידיאליים לקבלת אורחים, ליהנות משקיעות ולהכין ארוחות מצוינות. אזור הבריכה מציע פנורמות ייחודיות ושטח רב המוקדש להרפיה.

תוכניות קומה

Planimetria 1
Planimetria 2
Planimetria 3
Planimetria 4