Umbria, Monte Castello di Vibio

קזאלה דל בוסקו (Casale del Bosco)

€ 725.000

3חדרי שינה
3חדרי רחצה
520 מ"רשטח כולל
34,6 הקטארקרקע

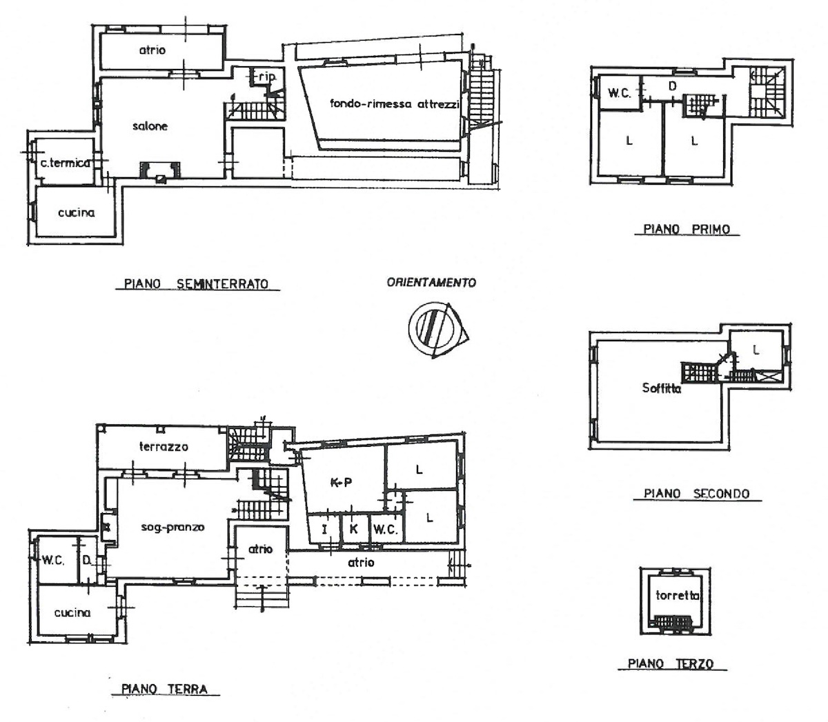
תיאור הנכס

בית החווה משתרע על שטח כולל של כ-520 מ"ר המסודר בארבע קומות, השוכן בסביבה טבעית של למעלה מ-34 דונם אדמה פרטית הכוללת מרעה טבעי, חורשות עתיקות וזיתים. הנכס, הממוקם על גבעות מונטה קסטלו די ויביו (Monte Castello di Vibio), נהנה ממיקום בלעדי המאופיין ברמת פרטיות גבוהה ונוף פנורמי המקיף מדרונות עדינים ועמקים האופייניים לאומבריה (Umbria), ומציע סביבה שלווה ומרעננת.

תוכניות קומה

Planimetria 1
Planimetria 2

סרטון