Toscana, Sarteano

קוטג' בלבדרה

€ 1.700.000

6חדרי שינה
9חדרי רחצה
651 מ"רשטח כולל
14,4 הקטארקרקע
כןבריכה

תיאור הנכס

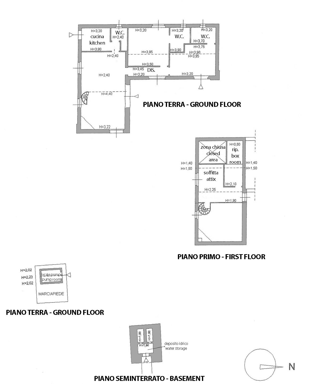
קוטג' בלבדרה המקסים מחכה לכם בעיריית סרטאנו (Sarteano), במחוז סיינה (Siena), ומציע חוויה טוסקנית סוחפת. מוקף במגרש קרקע גדול (מעל 14 דונם), הנכס מאופיין ברמת פרטיות גבוהה ובתצפית פנורמית הממסגרת את מרכז העיר העתיקה הסמוכה של סרטאנו (Sarteano) עם הנוף הטוסקני היפה ברקע. בית החווה הראשי מציע שטח מגורים של 370 מ"ר בשתי קומות + קומת עליית גג. בקומת הקרקע יש אזור מגורים גדול הכולל מטבח-פינת אוכל וסלון; בנוסף, באותה קומה יש חדר שינה לאורחים עם חדר רחצה פרטי, משרד עם חדר רחצה פרטי, מסדרון, חדר כביסה, חדר אחסון ושני חדרי רחצה נוספים. בקומה הראשונה יש סלון מרכזי התואם לגרם המדרגות הפנימי, 2 חדרי שינה עם חדרי רחצה פרטיים ו-2 מרפסות פנורמיות. בקומת עליית הגג יש חדר שינה נוסף עם חדר רחצה פרטי. בית החווה השני מציע שטח מגורים של 160 מ"ר. בקומת הקרקע יש סלון, מטבחון, מסדרון, שני חדרי שינה עם חדרי רחצה פרטיים. יש עליית גג בקומה העליונה. הנכס כולל גם נספח חקלאי של 43 מ"ר המשמש כמחסן – הוא מרוצף לחלוטין ומצויד בתנור עצים ומנגל חיצוני. הבניינים מוקפים בפארק מיוער יפהפה עם שתי כניסות נסיעה ובריכת שחייה (5 מ' x 10 מ' – עומק 0.90 מ' – 2.20 מ'), אידיאלית לשעות של רגיעה ופנאי במהלך חודשי הקיץ החמים. הבריכה מציעה נוף מרשים של הסביבה, המשפר את האווירה של שלווה ורווחה. הנכס כולל 14.4 דונם של קרקע – בנוסף לפארק הנ"ל יש גם יער של כ-10 דונם ומטעי זיתים פרודוקטיביים עם כ-350 עצים.

תוכניות קומה

Planimetria 1
Planimetria 2
Planimetria 3
Planimetria 4

אור הדר, מתווכת נדל"ן מורשית באיטליה

orhadar@homeitaly.co.il

אור הדר היא מתווכת נדל"ן מורשית המתמחה בליווי ישראלים ברכישת בתי נופש באיטליה. כילידת ישראל המתגוררת בפירנצה משנת 2015, אור מביאה עמה את היתרון הייחודי של הבנת שתי התרבויות והשפות. מומחיותה מתמקדת בהתאמת בתי נופש המשלבים את הקסם האיטלקי עם הצרכים הספציפיים של הלקוח הישראלי. כבעלת רישיון תיווך איטלקי, אור מלווה את לקוחותיה בכל שלבי הרכישה, החל מאיתור הנכס המושלם ועד להשלמת העסקה, תוך הקפדה על מקצועיות, שקיפות ותשומת לב אישית לכל פרט.

מידע נוסף ותיאום ביקור בנכס:

Or Hadar

P.iva 06699340482

© 2026 All Rights Reserved.