Toscana, San Quirico d'Orcia

דירה סן קוויריקו ד'אורציה (San Quirico d’Orcia)

€ 680.000

3חדרי שינה
3חדרי רחצה
264 מ"רשטח כולל

תיאור הנכס

הדירה ממוקמת במרכז ההיסטורי של סן קוויריקו ד'אורציה, ממש כמה מטרים מהרחוב הראשי ומשקיפה על הכיכר היפה ביותר בכפר. למרות מיקומה המרכזי, הבניין בו נמצאת הדירה מוסתר מעט מהרחוב הראשי ולכן נהנה משקט מוחלט. בחזית, לבניין יש חצר קטנה משותפת בה ניתן להחנות מכונית.

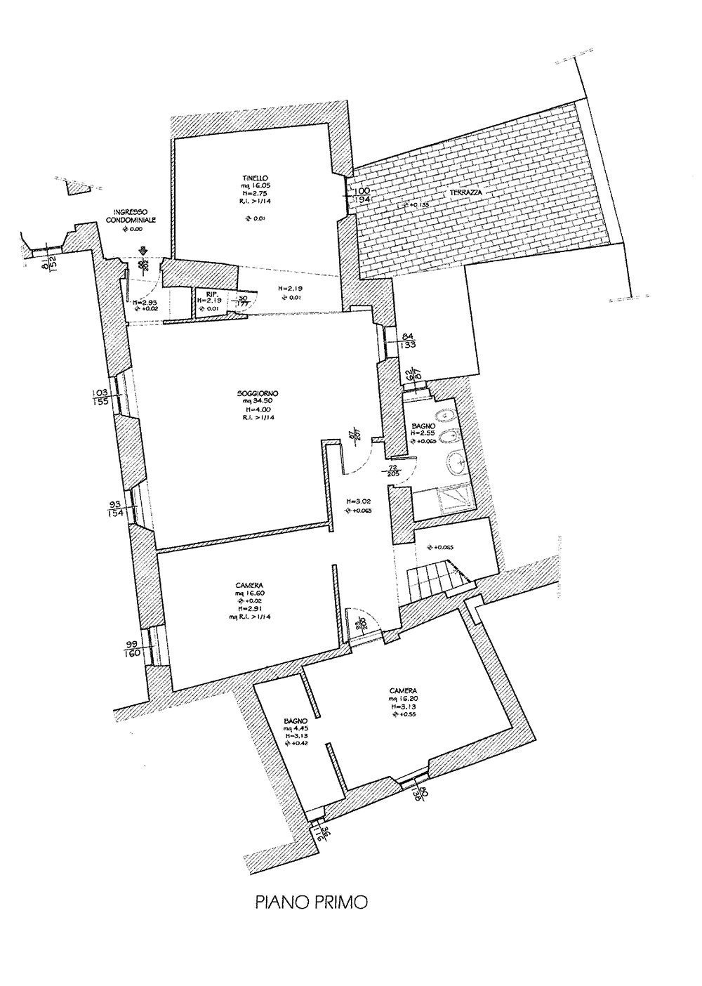
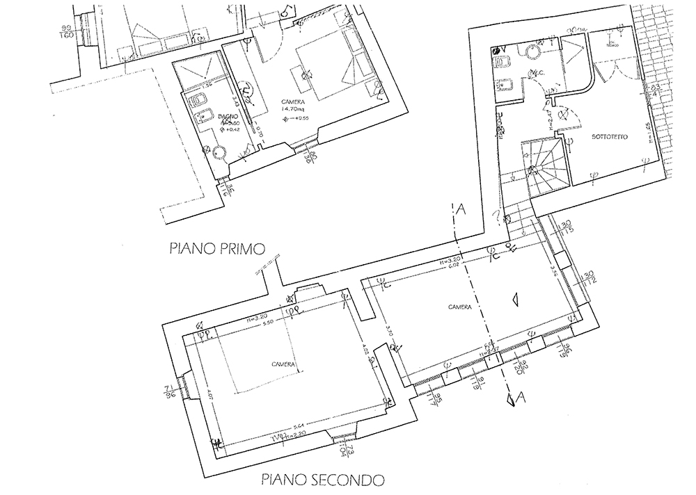
הדירה משתרעת על הקומות הראשונה והשנייה של ארמון היסטורי, ומציעה שטח כולל של כ-240 מ"ר. היא כוללת סלון מרווח עם אח מודרני בכניסה, מטבח גדול עם אי מרכזי וגישה לטרסה החיצונית המשקיפה על רחובות הכפר, חדר אמבטיה עם מקלחת וחימום תת רצפתי המשרת את הקומה וחדר שינה אחד; חדר שינה שני עם חדר אמבטיה צמוד. עולים לקומה העליונה במדרגות קורטן פנימיות יפות, יש חדר טכני וחדר כביסה, חדר אמבטיה גדול עם מקלחת וחדר השינה הראשי הממוקם במגדל, המתהדר בנופים מדהימים של הכיכר, גגות הבתים והסביבה הכפרית.

מהטרסה המקסימה בקומה הראשונה, הנגישה מהמטבח, יש כניסה לדירת מיני אורח שנייה של כ-70 מ"ר. יחידה זו עצמאית לחלוטין, מכיוון שיש לה גם גישה מרמת הרחוב, שם יש מוסך נוח המתאים לאחסון אופנועים, אופניים ואפילו מכונית מיני. מהמוסך, דרך מדרגות אבן המובילות לחצר פנימית קטנה, מגיעים לדירת המיני, המורכבת מסלון עם מטבחון, חדר אמבטיה עם מקלחת וחדר שינה זוגי עם שתי מיטות יחיד.

שימו לב שדירת המיני אינה כלולה במחיר המכירה של הדירה הראשית, אך ניתן לרכוש אותה יחד איתה.

הנכס נמכר חלקי מרוהט.

תוכניות קומה

Planimetria 1
Planimetria 2

אור הדר, מתווכת נדל"ן מורשית באיטליה

orhadar@homeitaly.co.il

אור הדר היא מתווכת נדל"ן מורשית המתמחה בליווי ישראלים ברכישת בתי נופש באיטליה. כילידת ישראל המתגוררת בפירנצה משנת 2015, אור מביאה עמה את היתרון הייחודי של הבנת שתי התרבויות והשפות. מומחיותה מתמקדת בהתאמת בתי נופש המשלבים את הקסם האיטלקי עם הצרכים הספציפיים של הלקוח הישראלי. כבעלת רישיון תיווך איטלקי, אור מלווה את לקוחותיה בכל שלבי הרכישה, החל מאיתור הנכס המושלם ועד להשלמת העסקה, תוך הקפדה על מקצועיות, שקיפות ותשומת לב אישית לכל פרט.

מידע נוסף ותיאום ביקור בנכס:

Or Hadar

P.iva 06699340482

© 2026 All Rights Reserved.