Umbria, Tuoro sul Trasimeno

אחוזה עתיקה של רוזה (Antica Dimora di Rosa)

€ 590.000

7חדרי שינה
4חדרי רחצה
570 מ"רשטח כולל

תיאור הנכס

במרחק כמה צעדים מאגם טרסימנו (Trasimeno), בעיריית טואורו (Tuoro), ניצב בית חווה היסטורי זה, שנבנה בתחילת שנות ה-1900, כדוגמה שובת לב לאדריכלות כפרית היסטורית, המציע סך של 570 מ"ר המחולקים על פני שלוש קומות. מיקומו על גבעה מבטיח רמה מוגברת של פרטיות, תוך שהוא מקיף נוף פנורמי של אגם טרסימנו (Trasimeno), הממוקם במרחק של כמה קילומטרים בלבד, עם יעדי תיירות ותרבות ידועים בהישג יד.

הגישה לנכס היא דרך כביש אספלט המוביל לגינה פרטית מרווחת ומטופחת בעלת פוטנציאל רב. בית החווה מוצג כנפח היסטורי, המאופיין באלמנטים ארכיטקטוניים אופייניים לתקופתו, הכולל קירות מבנה ופתחים ייחודיים המשפרים את החשיפה לדרום-מזרח/דרום-מערב, ומבטיחים אור טבעי עקבי לאורך כל היום.

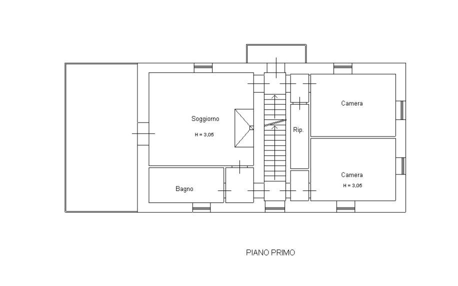
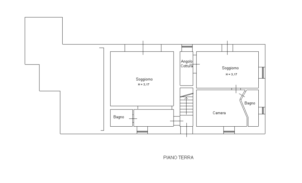
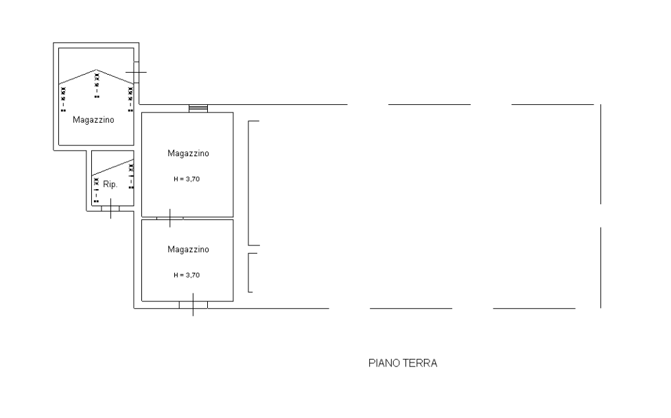
המבנה בנוי על פני שלוש רמות נפרדות, כאשר הכניסה הראשית בקומת הקרקע; חללי הפנים מאורגנים כדלקמן: בקומת הקרקע, ישנם 2 חדרי מגורים עם מטבחים, חדר שינה זוגי אחד ו-2 חדרי אמבטיה; בקומה הראשונה, סלון גדול עם מטבח ומרפסת פנורמית, חדר אמבטיה, 2 חדרי שינה זוגיים ומחסן; בקומה השנייה והעליונה, ישנם 2 חדרי שינה זוגיים, חדר שינה יחיד אחד, משרד וחדר אמבטיה. מקומה זו, מרפסת קטנה מציעה נוף של אגם טרסימנו (Trasimeno) וכל שלושת האיים שלו.
למרות המורכבות, הפריסה מציעה הזדמנויות רבות להתאמה אישית וניצול, כולל שימוש פוטנציאלי לאירוח או פעילויות תיירות כפריות.

ההתקנות הטכניות, מתחילת שנות ה-90, כוללות חימום ומערכות חשמל נאותות, אם כי ניתן לשפר אותן מבחינת יעילות אנרגטית, המדורגת כיום בדרגת G, ובכך מספקת הזדמנויות למודרניזציה שמטרתן נוחות וקיימות סביבתית. החללים מאופיינים בגובהי תקרה נדיבים ובחומרים מסורתיים היוצרים אווירה אותנטית. חדרי האמבטיה והמטבחים מאפשרים מגורים רב-תכליתיים ומקלים על ניהול משקי בית או אורחים מרובים.

חיצונית, השטח הירוק הוא נכס משמעותי, בהתחשב ברבגוניותו לשימושים כגון יצירת בריכת שחייה ו/או חממה. שמירה על מערך מסורתי וכפרי, מעודדת מגע עם הטבע ומשפרת את הנוף שמסביב. קרבה למסלולי תקשורת עיקריים, לתשתיות פנאי ולשירותים במרחק קצר מבטיחה נוחות מבלי לוותר על השלווה. נכס זה מייצג הזדמנות יוצאת דופן עבור אלה המעוניינים לשלב את הקסם של מורשת היסטורית עם פרויקט מגורים הנע בין שימוש פרטי לתיירות, בלב הכפר האומברי (Umbria) השופע.

תוכניות קומה

Planimetria 1
Planimetria 2
Planimetria 3
Planimetria 4
Planimetria 5