Umbria, Città della Pieve

פוג'ו לה פיאווה (Poggio la Pieve)

€ 1.250.000

9חדרי שינה
7חדרי רחצה
395 מ"רשטח כולל
0,9 הקטארקרקע
כןבריכה
כןגינה

תיאור הנכס

הוילה שקועה בלב הירוק של אומבריה, ממש דקות ספורות מצ'יטה דלה פיאווה, במיקום המשלב שקט ופרטיות. הגישה היא דרך כביש אספלט המוביל לשער כניסה גדול, מעבר לאשר נפתח פארק בשטח של כ-9,000 מטרים רבועים, המאופיין ביער ליבה אלגנטי ובחורשת זיתות פוריות התורמות ליצירת סביבה טבעית ומרגיעה, אידיאלית עבור אלה שמעריכים שקט מבלי לוותר על הנוחות של שירותים נגישים בפחות מחמש דקות. הוילה נמכרת מרוהטת במלואה, מוכנה לשימוש מיידי.

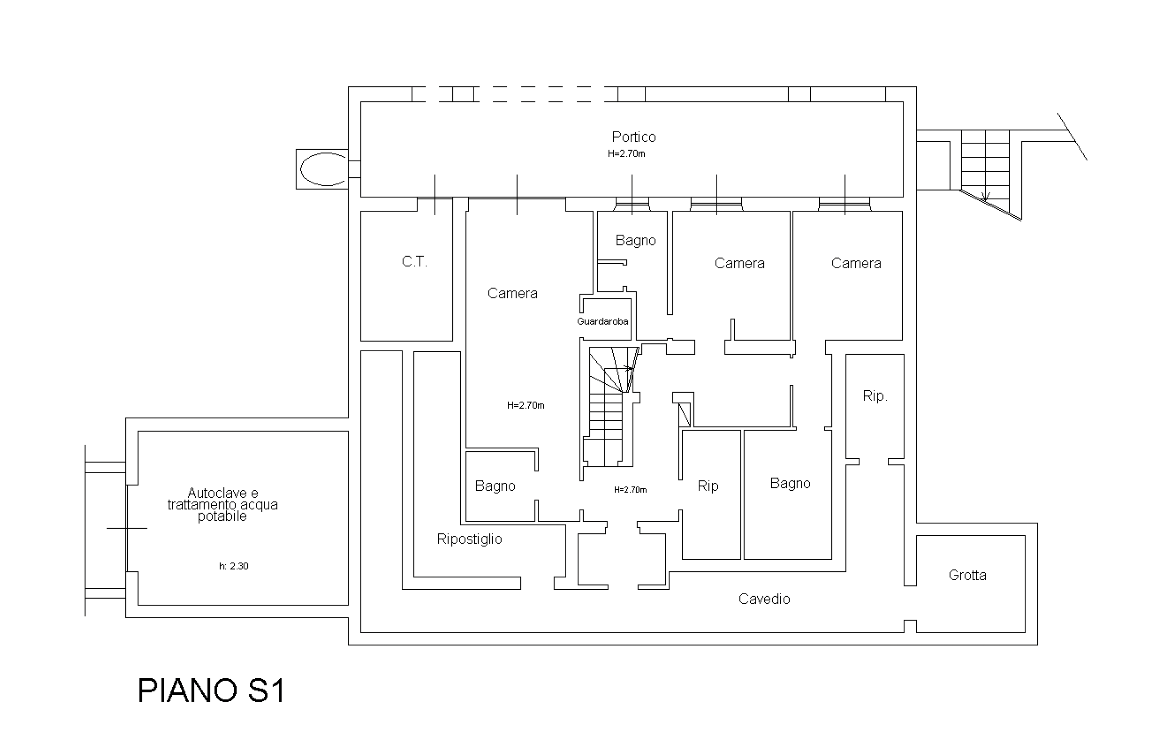
הוילה המשוחזרת משתרעת על פני שלושה מפלסים עם שטח מסחרי של כ-330 מטרים רבועים. המבנה, המתוארך לשנות ה-80, כולל אלמנטים ארכיטקטוניים פונקציונליים עם גימורים איכותיים, המאפשרים מקום להתאמה אישית. אזור המגורים בקומה התחתונה מארח פינת ישיבה נעימה עם אח, מושלמת לאירועים חברתיים, ומטבח מואר ופתוח שנפתח למרפסת מקורה, המאפשרת הנאה מהחוץ בכל עונה. בנוסף, ישנם שני חדרי שינה עם חדרי אמבטיה צמודים. בקומה הראשונה נמצאים חדרי השינה, המסודרים באופן רציונלי כדי להבטיח חללים פונקציונליים ונוחים, כולל חדרי אמבטיה והזדמנות ליצירת חדרים מותאמים אישית כגון חדר עבודה, חדרי שינה נוספים ואמבטיות במרתף עם גישה למרפסת ולגינה. בסך הכל, ישנם 9 חדרי שינה ו-7 חדרי אמבטיה.

הסביבה החיצונית מציעה שטחים ירוקים נרחבים עם עצי זית ועצים גבוהים, אידיאליים עבור אלה המחפשים גינה ליהנות ממנה בפרטיות מוחלטת. אזורי החניה מספקים נוחות למספר כלי רכב. החשיפה הדרומית החמה מבטיחה תאורה טבעית מצוינת לאורך כל היום, בעוד הנוף שמסביב משתרע בעדינות על גבעות אומבריה, ומציע אווירה של שלום ורווחה.

נכס זה מייצג בסיס מוצק עבור אלה המעוניינים להשקיע בוילה עם שטח רחב, השקועה בנוף טבעי מקסים, שיושלם ויותאם אישית לפי הטעם האישי. קרבתה לנתיבי תקשורת מרכזיים מאפשרת חיבורים מהירים לעיירות ולתשתיות מרכזיות, בעוד שהמיקום מבטיח פרטיות ונוחות בכל רגע.

תוכניות קומה

Planimetria 1
Planimetria 2
Planimetria 3
Planimetria 4

סרטון