Umbria, Città della Pieve

פודרה לאידיליו (Podere L'Idillio)

€ 980.000

479 מ"רשטח כולל
1,5 הקטארקרקע

תיאור הנכס

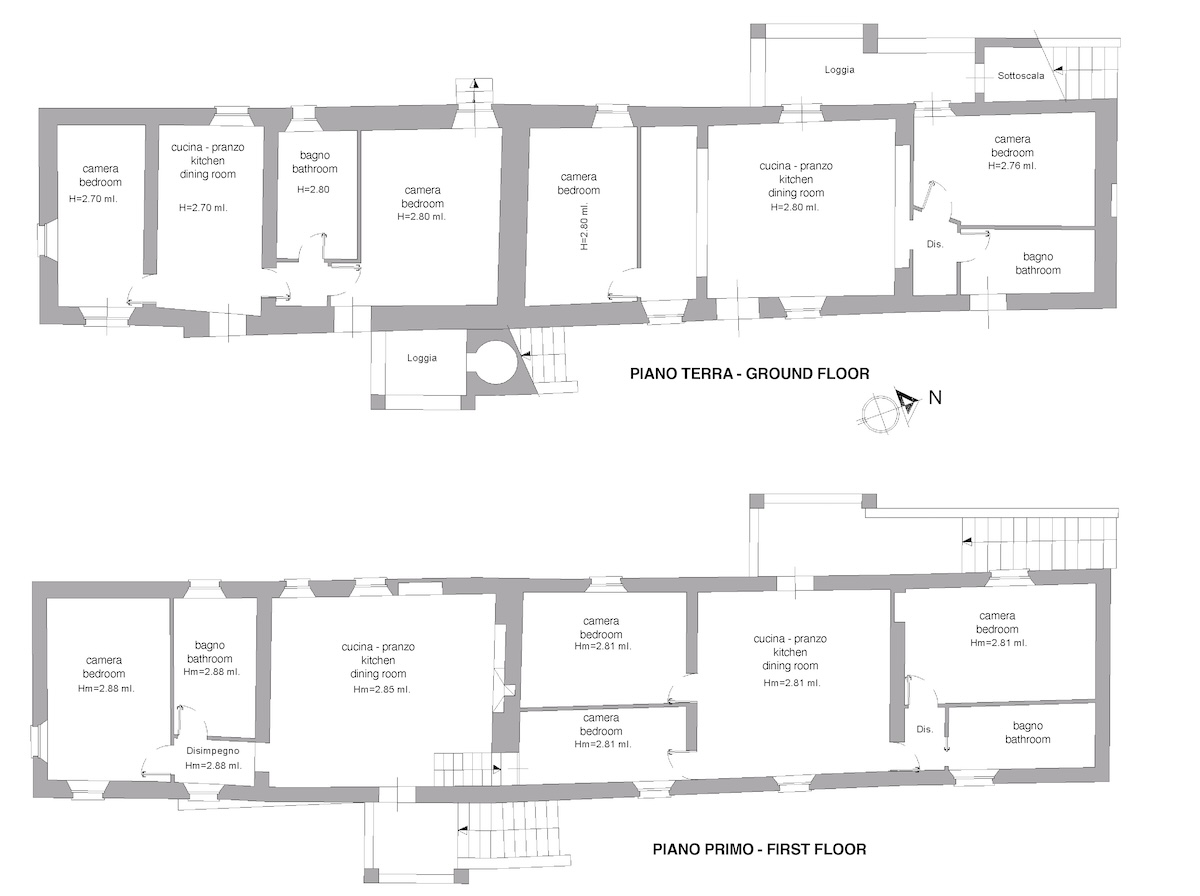
הבית החקלאי משתרע על שטח כולל של 342 מ"ר. הוא בנוי ב-2 קומות ומורכב מ-4 דירות הכוללות סך של 8 חדרי שינה ו-4 חדרי אמבטיה.

יחידה 1: סלון עם אח ומטבחון, 2 חדרי שינה, חדר אמבטיה;

יחידה 2: סלון עם מטבחון, 2 חדרי שינה, חדר אמבטיה;

יחידה 3: סלון עם מטבחון, חדר שינה וחדר אמבטיה;

יחידה 4: סלון עם מטבחון, 2 חדרי שינה, חדר אמבטיה.

הנכס כולל מחסן כלי עבודה בשטח של 57 מ"ר, מחסן בשטח של 25 מ"ר ומרתף עם מערה. הנכס מוצע עם 1.5 דונם של קרקע פרטית שבה ממוקמת הגינה הפנורמית היפה של החווה.

אפשרות לרכוש מגרש של 6,200 מ"ר של קרקע סמוכה הכוללת כנסייה קטנה, מבנה נוסף לשיפוץ ובריכה בגודל 19 x 7 מטרים (+ 220,000 אירו). ישנה גם אפשרות לרכוש קרקע חקלאית סמוכה נוספת עד לגובה של 50 דונם.

תוכניות קומה

Planimetria 1
Planimetria 2