Umbria, Fabro

פודרה פיאמה (Podere Fiamma)

€ 585.000

6חדרי שינה
6חדרי רחצה
551 מ"רשטח כולל
2,5 הקטארקרקע

תיאור הנכס

במיקום גבעות מדהים, בלב הכפר האומברי הירוק, במוניציפליות של פברו, ניצב בית חווה מקסים מאבן זה בשטח של כ-337 מ"ר, שקוע בשלווה ובטבע, אך במרחק דקות משירותים עיקריים. מקום אותנטי, עשיר בהיסטוריה ופוטנציאל, שיכול להפוך למגורים משפחתיים או למבנה אירוח מקסים.

בית החווה מוקף בכ-2.5 דונם של קרקע פרטית, כולל מרעה, יערות ואזורים ניתנים לעיבוד – מושלם למי שרוצה לחיות בהרמוניה עם האדמה, להתחיל עסק חקלאי, ליצור גינת ירק או פשוט ליהנות משטחי חוץ נרחבים, עם אפשרות ליצור אזורי רגיעה, פינות ברביקיו או אפילו בריכת שחייה פנורמית.

הנכס מחולק כיום לארבע דירות עצמאיות, כולן ראויות למגורים, כל אחת עם כניסה משלה וחללים מופצים היטב, אך ניתן בקלות להגדיר אותו מחדש למגורים גדולים אחד, אידיאלי למשפחה גדולה או למי שרוצה לשלב בית ואירוח.

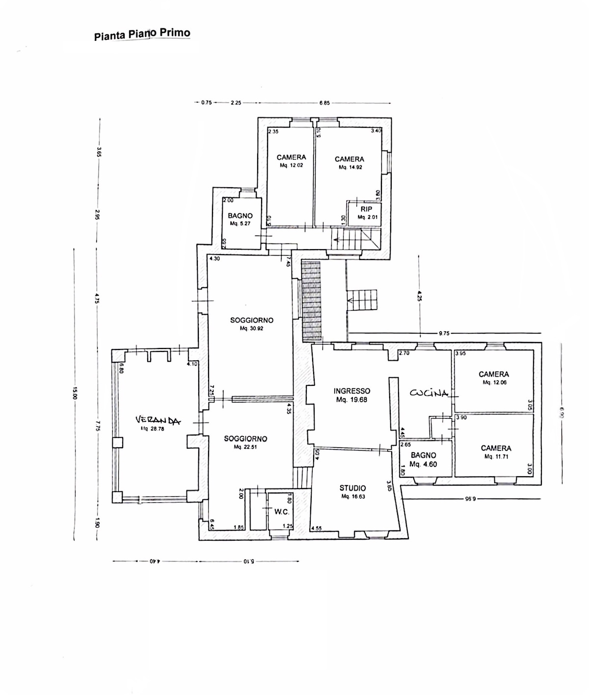
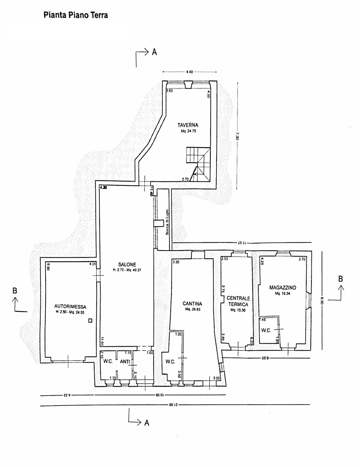
בקומת הקרקע, אתם מתקבלים בסלון גדול – סביבה נעימה וחברתית – הסמוכה למטבח עם פינת אוכל השומרת על כל הקסם של המסורת. משלימים את הקומה הזו שני חדרי שינה עם חדרי רחצה וכניסה עצמאית, נוחים מאוד גם לאורחים או צוות פוטנציאלי, ומרתף אבן אופייני, מושלם לאחסון יינות, שמן זית ותוצרת מקומית.

גרם מדרגות פנימי מוביל לקומה הראשונה, שם יש דירה ראשונה המורכבת מסלון מרווח, מטבח נפרד, חדר שינה זוגי עם נוף פתוח על הכפר, וחדר רחצה עם חלון. סמוכות אליו שתי דירות נוספות, המחוברות זו לזו, כל אחת עם מטבח, סלון, חדר רחצה וחדרי שינה. החדרים מוארים, עם תקרות גבוהות הכוללות קורות חשופות, רצפות טרקוטה ופתחים המציעים נופים קסומים של הטבע שמסביב.

מקום לחיות, להתאים אישית ולאהוב.

תוכניות קומה

Planimetria 1
Planimetria 2