Umbria, Città della Pieve

פודרה צימבוללו (Podere Cimbolello)

€ 870.000

5חדרי שינה
5חדרי רחצה
474 מ"רשטח כולל
5,0 הקטארקרקע

תיאור הנכס

שני קילומטרים מציטה דלה פייבה (Città della Pieve) נמצא הנכס פודרה צימבוללו. יש בדיוק 900 מטרים של כביש סלול ו-1.3 קילומטרים של דרך חצץ. לאורך הדרך אנו מוצאים את מטעי הזיתים שהם חלק מהנכס בצד שמאל, וקצת אחרי הכניסה. מהכניסה לדרך הפרטית, קצת פחות מ-100 מטרים מגיעים לשני הבניינים המרכיבים את הנכס, הממוקמים בדיוק באמצע השטח.
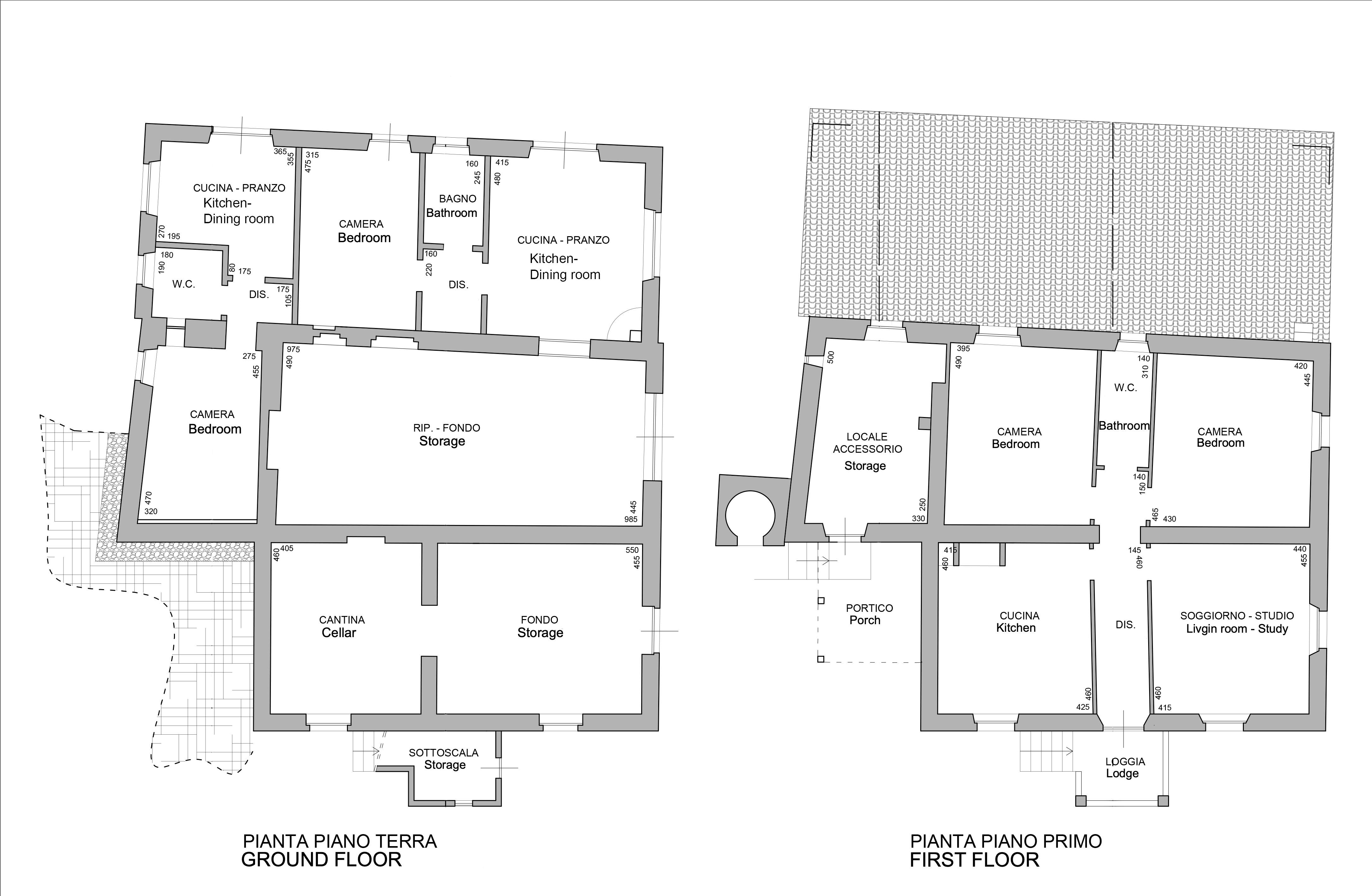
הדרך מסתיימת, הנכס חופשי מהגבלות והבניינים הם לכן בפרטיות מוחלטת. הבניין הראשי מורכב מדירה בקומה הראשונה המורכבת משני חדרי שינה, חדר אמבטיה, מטבח מרווח עם אח וסלון בשטח כולל של כ-130 מ"ר הזקוק לשיפוץ; מרתף ומחסן בקומה הקרקעית בשטח של כ-120 מ"ר.
ישנן שתי דירות המורכבות מחדר שינה, חדר אמבטיה ומטבח, שנבנו בתחילת שנות ה-2000 עם בידוד תרמי מצוין ושימוש מיומן בחומרים טיפוסיים, ולאחר מכן תוחזקו ושופרו בקפידה לאורך השנים. באותו בניין יש מטבח, ליד תנור עצים, מרפסת ופינת ברביקיו. הבניין השני נבנה כולו בשנת 2018, החל מהיסודות, תוך שימוש במבנה עץ, טכניקות בנייה ביולוגיות מצוינות וגימורי אבן בעבודת יד חיצוניים; בניין זה מורכב ממטבח/חדר אוכל, חדר שינה עם משרד או חדר הלבשה, 2 חדרי אמבטיה ומחסן, בשטח כולל של כ-83 מ"ר, בתוספת פטיו יפהפה עם פרגולה בצד הקצר ומרפסת של כ-20 מ"ר בצד הקצר. האדמה תמיד מעובדת על ידי הבעלים בשיטות טבעיות חדשניות. ישנם כהקטר אחד של מטעי זיתים עם 300 עצים, כ-5000 מ"ר מוקדשים לגפנים עם ענבי יין לבנים ואדומים. להשלמת הנכס ישנם כ-2 הקטאר של יער והחלק הנותר הוא אדמה חקלאית, דשא וגינה.

תוכניות קומה

Planimetria 1
Planimetria 2
Planimetria 3
Planimetria 4

סרטון

אור הדר, מתווכת נדל"ן מורשית באיטליה

orhadar@homeitaly.co.il

אור הדר היא מתווכת נדל"ן מורשית המתמחה בליווי ישראלים ברכישת בתי נופש באיטליה. כילידת ישראל המתגוררת בפירנצה משנת 2015, אור מביאה עמה את היתרון הייחודי של הבנת שתי התרבויות והשפות. מומחיותה מתמקדת בהתאמת בתי נופש המשלבים את הקסם האיטלקי עם הצרכים הספציפיים של הלקוח הישראלי. כבעלת רישיון תיווך איטלקי, אור מלווה את לקוחותיה בכל שלבי הרכישה, החל מאיתור הנכס המושלם ועד להשלמת העסקה, תוך הקפדה על מקצועיות, שקיפות ותשומת לב אישית לכל פרט.

מידע נוסף ותיאום ביקור בנכס:

Or Hadar

P.iva 06699340482

© 2026 All Rights Reserved.