Umbria, Acquasparta

הלוג'ות המפוארות (Le Splendide Logge)

€ 1.680.000

8חדרי שינה
10חדרי רחצה
1.095 מ"רשטח כולל
4,4 הקטארקרקע

תיאור הנכס

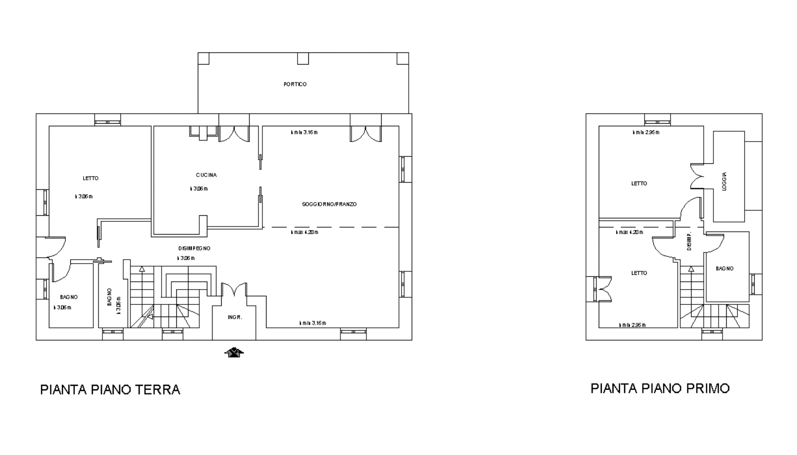
הנכס מורכב משני בתי כפר עתיקים מהמאה ה-19, שנבנו מחדש מאפס מחומרים מצוינים, תוך כיבוד קריטריוני הסיסמיות העדכניים ביותר, תוך תשומת לב לפרטים הקטנים ביותר. הגישה היא דרך דרך "לבנה", מוארת במלואה ומוקפת בחורשת העצים ובטחנת הכמהין הפעילה. הנכס ממוקם במרכז עמק אומבריאני טיפוסי, דליל אוכלוסין, ומוקף בחצר גדולה עם מרחב ירוק יפהפה, שחלקו נשאר פראי. הקירות בנויים מאבן והחלונות מעץ בעוד שהרצפות הן טרקוטה מקסטלוויסקארדו. החללים הפנימיים גדולים ומוארים. הקוטג' הראשי (כ-600 מ"ר) מורכב מאולם גדול – סלון פנימי עם אח יפה ומאפיין, חדר שינה עם חדר רחצה, מטבח מרווח ומרפסת מקורה המשקיפה על גבעות אומבריה המתגלגלות. בקומה העליונה יש מסדרון מעבר ושני חדרי שינה נוספים עם חדרי רחצה צמודים. גרם מדרגות חיצוני מוביל לקומה השנייה שם יש דירה עצמאית המורכבת ממטבח, סלון וחדר שינה מרווח עם חדר רחצה צמוד. הקוטג' הושלם על ידי מוסך וחדרי שירות נוספים כגון חדרי אחסון, מרתפים ומחסן עצים הממוקמים בקומה שמתחת לרחוב. הקוטג' השני, כ-330 מ"ר, מחולק כדלקמן: בקומה הקרקעית יש כניסה, סלון/פינת אוכל גדולה, מטבח, חדר שינה ושני חדרי רחצה. בקומה השנייה יש שני חדרי שינה עם חדר רחצה ומרפסת מקורה. חדר הטכני, המוסך והקרנות נמצאים בקומה שמתחת לרחוב. הנכס מוקף בגינה ירוקה ומפוארת בה תוכלו לבלות רגעים של רגיעה ושלום שקועים בטבע עם המשפחה והחברים שלכם. יש גם מערכת השקיה בפנים. יש גם אפשרות לבנות בריכת שחייה. הייחודיות של נכס זה נובעת מהנוכחות של כמהין, כ-2 דונם מתוך 4.2.

מאפיינים פנימיים

  • אינטרקום וידאו (Intercom וידאו)
  • רצפות טרקוטה (רצפות טרקוטה)
  • חדר רחצה עם מקלחת (חדר רחצה עם מקלחת)
  • חימום תת רצפתי (חימום תת רצפתי)

מאפיינים חיצוניים

  • פנורמי (פנורמי)
  • נוף פתוח (נוף פתוח)
  • נוף הרים (נוף הרים)

תוכניות קומה

Planimetria 1
Planimetria 2
Planimetria 3
Planimetria 4
Planimetria 5
Planimetria 6
Planimetria 7
Planimetria 8

אור הדר, מתווכת נדל"ן מורשית באיטליה

orhadar@homeitaly.co.il

אור הדר היא מתווכת נדל"ן מורשית המתמחה בליווי ישראלים ברכישת בתי נופש באיטליה. כילידת ישראל המתגוררת בפירנצה משנת 2015, אור מביאה עמה את היתרון הייחודי של הבנת שתי התרבויות והשפות. מומחיותה מתמקדת בהתאמת בתי נופש המשלבים את הקסם האיטלקי עם הצרכים הספציפיים של הלקוח הישראלי. כבעלת רישיון תיווך איטלקי, אור מלווה את לקוחותיה בכל שלבי הרכישה, החל מאיתור הנכס המושלם ועד להשלמת העסקה, תוך הקפדה על מקצועיות, שקיפות ותשומת לב אישית לכל פרט.

מידע נוסף ותיאום ביקור בנכס:

Or Hadar

P.iva 06699340482

© 2026 All Rights Reserved.