Umbria, Corciano

לה רוקה (La Rocca)

€ 1.380.000

16חדרי שינה
13חדרי רחצה
1.324 מ"רשטח כולל
2,8 הקטארקרקע
כןבריכה

תיאור הנכס

ממוקם בנוף של אומבריה (Umbria), בין הערים פרוג'ה (Perugia) ואגם טרסימנו (Trasimeno), הנכס שוחזר לחלוטין בתחילת שנות ה-90 של המאה ה-20 ועדיין שומר על כל קסמו העתיק. כיום משמש כמתקן אירוח, והוא מחולק ל-10 דירות, מתוכן 8 ממוקמות בתוך המצודה ו-2 בבניין סמוך. במרתף יש חדר אוכל עם מטבח מקצועי. ישנם גם שטחים לקבלה, כביסה ואחסון. השטח הכולל הוא כ-1,200 מ"ר. הגינה המפוארת משתרעת על שטח של 4,500 מ"ר, ובתוכה נמצאת בריכת שחייה בגודל 15×7.5 מטר ומגרש טניס. מחוץ לגינה ישנם שטחי קרקע נוספים בבעלות, כרם, מטעי זיתים עם 120 עצי זית ואדמות חקלאיות, הכל בשטח כולל נוסף של 2.3 דונם.

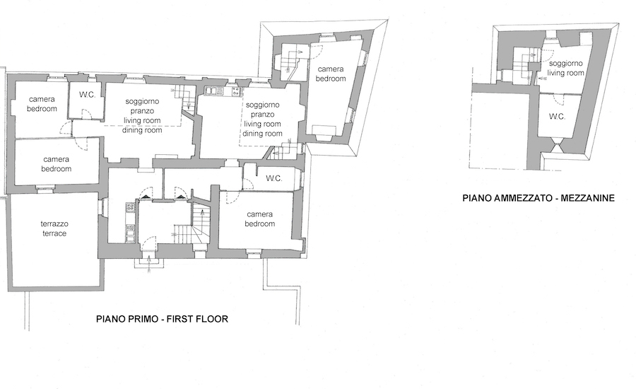
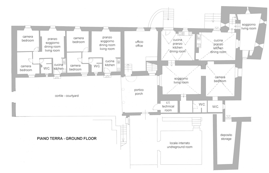
תוכניות קומה

Planimetria 1
Planimetria 2
Planimetria 3
Planimetria 4
Planimetria 5