Toscana, Castellina in Chianti

האחוזה בקיאנטי (Chianti)

€ 1.200.000

12חדרי שינה
12חדרי רחצה
500 מ"רשטח כולל
0,4 הקטארקרקע
כןבריכה

תיאור הנכס

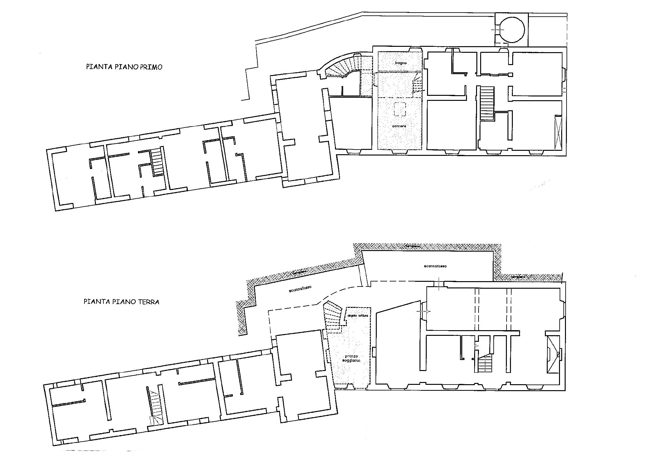
החווה, המתוארכת לסביבות 1750, משתרעת על שטח של כ-500 מ"ר בשתי קומות ומורכבת מ-12 חדרי שינה עם 12 חדרי אמבטיה, 5 מטבחים, 6 חדרי מגורים, חדר שירות ואחסון. הבניין מתהדר באלמנטים טיפוסיים של טוסקנה (Tuscany), כמו חזיתות חיצוניות מאבן, קירות פנימיים מטויחים (עם אבן חשופה באזורים מסוימים), קמרונות לבנים, ריצוף טרקוטה ותקרות עם קורות עץ ואריחים.
הנכס מוקף בכ-4,000 מ"ר של גינה עם אזור רגיעה ובריכת שחייה בגודל 10×5 מ'.

מאפיינים פנימיים

  • חדר אמבטיה עם מקלחת
  • ריצוף טרקוטה
  • כניסות מרובות

מאפיינים חיצוניים

  • נוף לגינה

תוכניות קומה

Planimetria 1
Planimetria 2
Planimetria 3

מרחקים

  • ים 120
  • "מתקני סקי 120
  • ערים/עיירות/כפרים 4
  • שדה תעופה 40
  • סופרמרקט 4
  • Theatres/קולנוע 4
  • תחנה 15
  • בית חולים 15
  • בנקים 4
  • "יציאת כביש מהיר 15
  • בתי ספר 4
  • חנויות 4
  • אגם 80