Toscana, Castiglion Fiorentino

קאזה טודיולו (Casa Todiolo)

€ 1.150.000

5חדרי שינה
4חדרי רחצה
440 מ"רשטח כולל
1,2 הקטארקרקע
כןבריכה

תיאור הנכס

ממוקם בסביבה הציורית של עמק קיו, בית החווה העתיק המשוחזר הזה מייצג הזדמנות ייחודית למי שרוצה לשלב את יופייה של המסורת הטוסקנית עם נוחות מגורים מודרנית. הנכס כולל 12,080 מ"ר של קרקע, הכוללת גינה, עצים בוגרים ובריכת שחייה.

הנוף מהגינה משתרע על פני גבעות מתגלגלות וכרמים. בית החווה האבן משולב בצורה מושלמת בנוף הסובב, ומציג אלמנטים ארכיטקטוניים אופייניים ומקוריים של הבניין ההיסטורי.

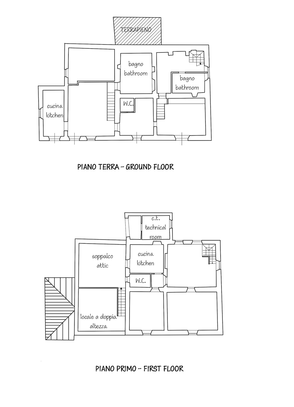
המבנה הראשי מציע כ-290 מ"ר של שטח מגורים ברוטו, המשתרע על שתי קומות, המפורטות כדלקמן:
– הקומה הקרקעית מורכבת מחדר אוכל, מטבח, חדר שינה אחד בחלק האחורי, חדר שינה אחד בחזית (עם דלתות צרפתיות) וחדר אמבטיה.
– בקומה הביניים, הנגישה במדרגות עץ חשופות, יש אזור מגורים, מסדרון, חדר אמבטיה וחדר שינה נוסף (גם עם דלתות צרפתיות).
– מדרגות מחברות לקומה העליונה, הכוללת מטבח, חדר שינה, חדר אוכל וחדר אמבטיה. הנופים מהרמה הזו מדהימים.

החללים תוכננו לשלב פונקציונליות ואלגנטיות. הסמוכים לבניין הראשי הם שני מבני עזר: בית אורחים וחדר אחסון.
– לבית האורחים שטח ברוטו של כ-50 מ"ר והוא מורכב ממטבחון, חדר אמבטיה, חדר שינה וסלון.
– חדר האחסון מכסה כ-50 מ"ר.
– הקרקע הסובבת משתרעת על כ-1.2 הקטאר ומורכבת בחלקה מאדמות חקלאיות, מטעי זיתים, יערות מעורבים וגינה.

הנכס משלים בריכת שחייה בגודל 10 x 5 מטר ומערכת פאנלים סולאריים.

תוכניות קומה

Planimetria 1
Planimetria 2